Prístroj na brúsenie výhrubníkov

obrabeni na klasice
ovi-ivo
Příspěvky: 1298
Registrován: 12. 4. 2015, 9:41
Bydliště: kůsek od Hodonína

15. 3. 2018, 7:58

Ahoj,
sehnal sem tento přípravek a zamýšlám sním to samý co ty, broušení závitníků, vrtáků a všeho co má 2- 4 břity, myslím že by to mohlo být pohotovější než přípravek na vrtáky, ale hlavně upínaly by se vrtáky přímo za morse kužel a vtom vidím jistou výhodu a větší svobodu broušených průměrů vrtáků...mk4 tam se dá už neco nacpat :-)

Ty kulisy si dělal na soustruhu nebo na frézce?
Čeká mě výroba a tak si nechám poradit od majstrů.
Ovšem stále nevím jaká stroupání kulis zvolit....něco jinýho to bude chtít na závitník M3 a něco jínýho na vrták d50....
čím změřit těch 7° třeba na vrtáku???
Uživatelský avatar
kenybz
Příspěvky: 3353
Registrován: 16. 2. 2015, 11:16

16. 3. 2018, 6:39

když to upneš za stopku a nebo za kužel bude se ti to chvět
chtělo by to na vřetýnko dat tuto šestičelisťovou univerzálku a upínat vrták za šoubovici
https://www.aliexpress.com/item/100mm-6 ... autifyAB=0" onclick="window.open(this.href);return false;
pro inspiraci mrkni sem jak to funguje
http://www.nasetraktory.eu/forum/viewto ... 94&t=95969" onclick="window.open(this.href);return false;
nevýhoda tohoto přípravku je že budeš muset ty kulisy přehazovat jedna by měla obsáhnout rozsah 5mm v průměrech
Gdyž sa chce, tak ide fšecko...
Uživatelský avatar
elbarto
Příspěvky: 5444
Registrován: 22. 5. 2014, 10:27
Bydliště: Prague

16. 3. 2018, 11:24

... ta uni vypada sikovne. Mate nekdo konkretni zkusenost s kusama z Aliepressu. Na jedne pakne je videt rez :-(
P.S. edit: nebo koukam spis asi tady s eBay-Garantie: https://www.ebay.de/itm/Prazisions-3Jaw ... BvdQclWI6w" onclick="window.open(this.href);return false;
ovi-ivo
Příspěvky: 1298
Registrován: 12. 4. 2015, 9:41
Bydliště: kůsek od Hodonína

17. 3. 2018, 12:44

kenybz píše:když to upneš za stopku a nebo za kužel bude se ti to chvět
chtělo by to na vřetýnko dat tuto šestičelisťovou univerzálku a upínat vrták za šoubovici
https://www.aliexpress.com/item/100mm-6 ... autifyAB=0" onclick="window.open(this.href);return false;
pro inspiraci mrkni sem jak to funguje
http://www.nasetraktory.eu/forum/viewto ... 94&t=95969" onclick="window.open(this.href);return false;
nevýhoda tohoto přípravku je že budeš muset ty kulisy přehazovat jedna by měla obsáhnout rozsah 5mm v průměrech
jo dík za radu, samozřejmě že za kužel zkusím až vrtáky od 25mm navrch do tohoto průměru mám kleštiny ale taková uni by byla fakt asi nejlepší to je jistý jen kolik má házivost takové upnutí v číně??
to přehazování kulis mě až zas tak nebude limitovat myslím, že výměna je do jedné minuty.
No a jak bys vyrobil tady tu vačku? mě napadá soustruh jako při žezání závitů.
Nebo na frézce jako frézování šroubovice pomocí děličky, liry, ozubených kol? to je trušku asi složitější.
Uživatelský avatar
Mylan
Příspěvky: 502
Registrován: 7. 8. 2016, 3:04
Bydliště: SNV

18. 3. 2018, 3:30

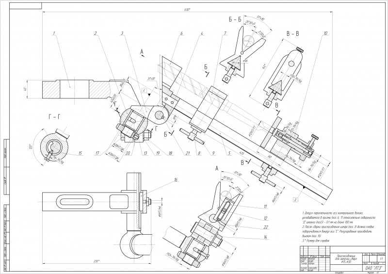
Kulisu som robil na sústruhu /vopruz/, najprv vytočiť rúru, odfrézovať pol priemeru a potom závit. Stúpanie podľa som zvolil podľa uhla / pravouhlý trojuholník/. Vrtáky pôjdu brúsiť, ale musela bi sa vyrobiť staviteľná prizmatická podpera, lebo chveje všetko - nezáleží na priemere. Na brúsenie vrtákov idem vyrobiť tento prípravok, ktorý má tú vlasnosť, že nič netreba nastavovať podľa priemeru vrtáka.
Přílohy
2012343.jpg
Nákres prípravku.jpg
SV18R,FA3AH,V23a,Plazma Berlan40,MIG ETP208,2H125,brúska z F1,Bomar160.120
milan584
Příspěvky: 2126
Registrován: 12. 5. 2009, 2:17
Bydliště: na jihu

19. 3. 2018, 5:02

tady je ten výkres v čitelném rozlišení
http://www.vmasshtabe.ru/wp-content/upl ... blenie.jpg" onclick="window.open(this.href);return false;
po registraci by to mělo jít stáhnout tady: (malovaný je to v kompassu)
http://www.vmasshtabe.ru/mashinostroeni ... sverl.html" onclick="window.open(this.href);return false;
Odpovědět

Zpět na „konvencni obrabeni“