Stavba domácího soustruhu
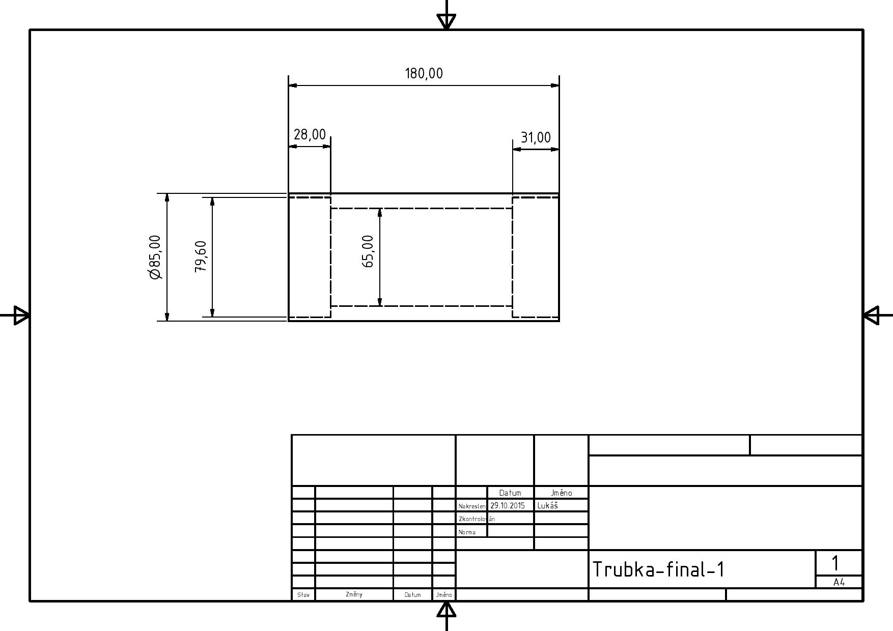
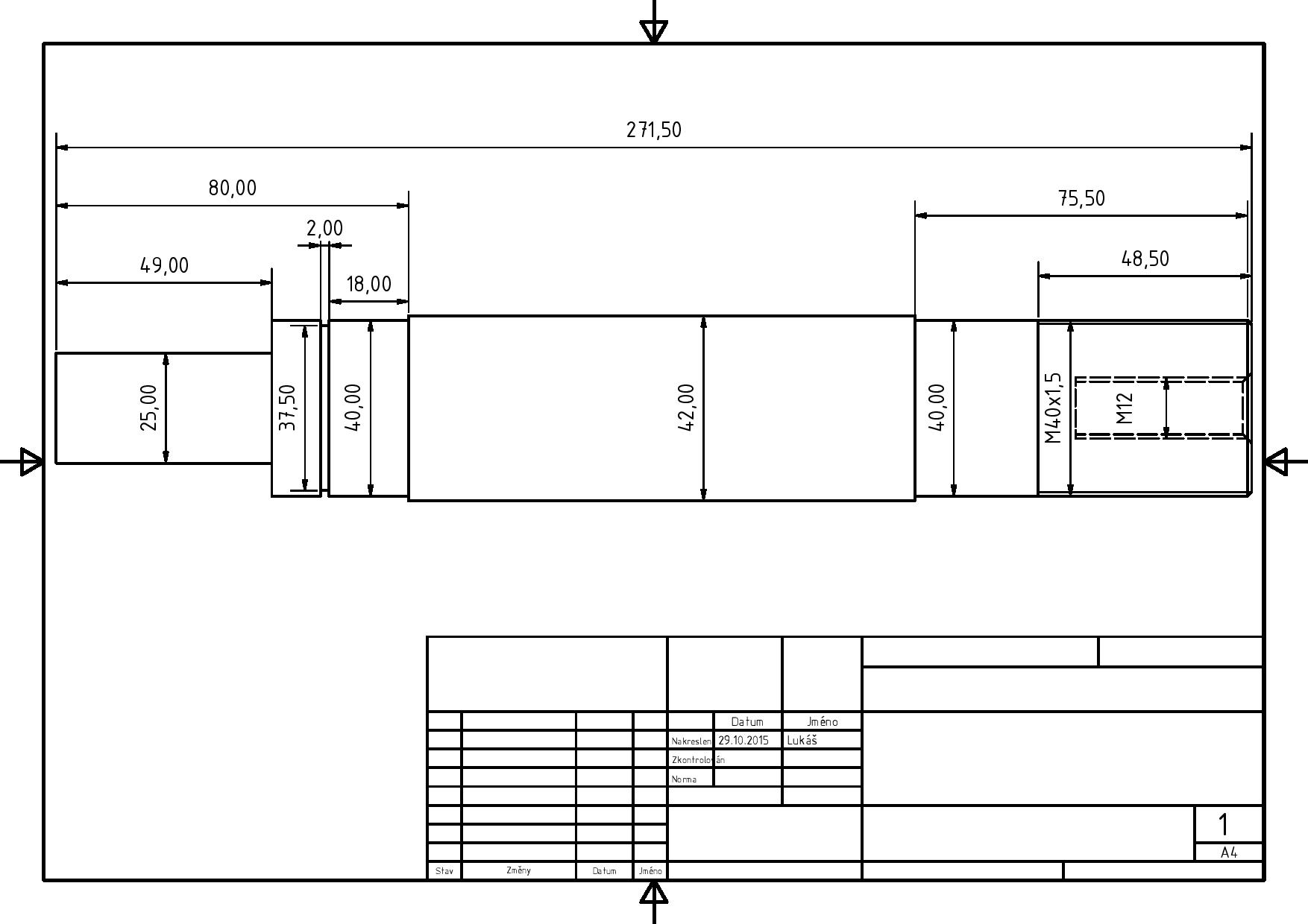
Ahoj koupil jsem tady tuhle kostru supportu a dodělávám k tomu uložení pro vřeteno, vřeteno mám IU 100 a motor MEZ mohelnice 1,5kw 1410ot/min. Bude to mít příčný automatický posuv pomocí motorku ze stěračů zpřevodovaného pomocí sekundára a rozety z minibike s posuvem 0,43 a 0,27. Potom budu asi přefrézovávat lože a dodělávat asi radiální support, protože tenhle je totálně na pytel vymyšlený tak udělám takový jaký přikládám v obrázkách. V uložení je 40mm tyč s uložením na ložiskách s kosoúhlým stykem. A převodovka bude přes dvě řemenice a převodovku z pincka. V příloze je i dokument s počtem otáček co by to mělo mít. Co na to říkáte ?
Já vím kluci že rádí kutíte ,ale život není tak dlouhý abys ho musel trávit zbytečnou prací.Skoč někam na brigádu a kup něco na čem stojí za to trávit čas tím myslím soustruh který je funkční a stačí jenom nějaká oprava a v ušetřeným čase se na tom soustruhu nauč dělat fajnovou práci .Znám to z vlastní zkušenosti 
http://www.rm-reznicek.cz" onclick="window.open(this.href);return false;
přesně jak radí kolega výše
vys... se na to a kup si něco fabrického
tohle mělo smysl za komančů, když to šlo všechno udělat v šichtě melouchem a nic jiného nebylo dostupné
i 100 let stará mašina na transmise bude lepší než tohle
pokud píšeš že rybinové vedení nemůžeš udělat z "důvodu nedostupnosti úhlové frézy" v době, kdy ji na netu objednáš a třetí den ti přijde poštou až domů za pár stovek, tak to je bez dalšího komentáře
to hranaté vedení tak jak je nevyrobíš a když, tak to bude mít mm vůle
pro ilustraci - cca před rokem jsem dával dohromady kamarádovi soustruh z "Urob si sám" (někde je tu o něm vlákno) ze stavu, kdy v krabici byly vyrobené všechny díly, strávil jsem na tom několik set hodin práce a to mám k dispozici v podstatě všechno na co si vzpomenu
vys... se na to a kup si něco fabrického
tohle mělo smysl za komančů, když to šlo všechno udělat v šichtě melouchem a nic jiného nebylo dostupné
i 100 let stará mašina na transmise bude lepší než tohle
pokud píšeš že rybinové vedení nemůžeš udělat z "důvodu nedostupnosti úhlové frézy" v době, kdy ji na netu objednáš a třetí den ti přijde poštou až domů za pár stovek, tak to je bez dalšího komentáře
to hranaté vedení tak jak je nevyrobíš a když, tak to bude mít mm vůle
pro ilustraci - cca před rokem jsem dával dohromady kamarádovi soustruh z "Urob si sám" (někde je tu o něm vlákno) ze stavu, kdy v krabici byly vyrobené všechny díly, strávil jsem na tom několik set hodin práce a to mám k dispozici v podstatě všechno na co si vzpomenu
Obvykle se dějí věci obvyklé. Méně často se dějí věci neobvyklé a zcela vyjímečně se dějí věci vyjímečné...
Masturn 40 CNC, Hermle UWF1200H CNC a pár klasik
http://www.radialengine.cz" onclick="window.open(this.href);return false;
http://www.autopejsek.cz" onclick="window.open(this.href);return false;
Masturn 40 CNC, Hermle UWF1200H CNC a pár klasik
http://www.radialengine.cz" onclick="window.open(this.href);return false;
http://www.autopejsek.cz" onclick="window.open(this.href);return false;
pokud je cesta cílem tak budiž
pokud má být cílem něco použitelného, tak je to vyhozený čas a peníze
pokud má být cílem něco použitelného, tak je to vyhozený čas a peníze
Obvykle se dějí věci obvyklé. Méně často se dějí věci neobvyklé a zcela vyjímečně se dějí věci vyjímečné...
Masturn 40 CNC, Hermle UWF1200H CNC a pár klasik
http://www.radialengine.cz" onclick="window.open(this.href);return false;
http://www.autopejsek.cz" onclick="window.open(this.href);return false;
Masturn 40 CNC, Hermle UWF1200H CNC a pár klasik
http://www.radialengine.cz" onclick="window.open(this.href);return false;
http://www.autopejsek.cz" onclick="window.open(this.href);return false;
náhodou převodovka z Pincka, motor ze stěračů to už tady dlouho nebylo.. já bych ho hned tak neodrazoval a nechal mu čas na vystřízlivění..
..
to je kategorie +-15let alespoń nepojede na drogách..
to je kategorie +-15let alespoń nepojede na drogách..
věčný rýpal,který musí mít poslední slovo, odpůrce low-cost zařízení končících v naprosté většině případů v hromadě šrotu
uživatelé hýbátek, kteří mají z mých příspěvků celoživotní trauma nechť si mé příspěvky VYPNOU
uživatelé hýbátek, kteří mají z mých příspěvků celoživotní trauma nechť si mé příspěvky VYPNOU
-
ZDENEK1.DOLEZAL
- Příspěvky: 243
- Registrován: 16. 12. 2013, 9:09
CO MÁŠ ZA STĚRAČE, ŽE MAJÍ PŘÍKON 1,5KW 
dej to na aukro a za utržené peníze začni objíždět na fichtlovi kovošroty . V tvém kraji je jich dost . A ten čas až něco za 8kč/kg koupíš bude určitě kratší nežli by jsi na tomhle něco vytočil. Nějaký 100-200kg kousek potkáš. Či když si dáš limit a začneš cifru rozšiřovat mezi známé ,tak se může najít nějakej prcek po dědovi za litřík dva (pro rejpaly nebavím se o MN80 ani SV18).
https://www.facebook.com/pages/Volman-% ... =bookmarks" onclick="window.open(this.href);return false;
Volman MN80, Volman M6 ,Volman NOF a další litinové smetí...
Volman MN80, Volman M6 ,Volman NOF a další litinové smetí...
Zatím ta nejlepší rada .Na Aukru se prodá skoro všechno a když si uděš kamaráda na šroťáku tak obvolá i ostatní a dá ti vědět až něco bude.PAKO.ll píše:dej to na aukro a za utržené peníze začni objíždět na fichtlovi kovošroty . V tvém kraji je jich dost . A ten čas až něco za 8kč/kg koupíš bude určitě kratší nežli by jsi na tomhle něco vytočil. Nějaký 100-200kg kousek potkáš. Či když si dáš limit a začneš cifru rozšiřovat mezi známé ,tak se může najít nějakej prcek po dědovi za litřík dva (pro rejpaly nebavím se o MN80 ani SV18).
http://www.rm-reznicek.cz" onclick="window.open(this.href);return false;
Jéééj, já na tom nehodlám soustružit hřídele do jaderné elektrárny a ranní odpolední a noční na tom makat nebudu. Jednak za 3000 nic nekoupím, a další věc soustruh a frézku si obstarám které by mi vyrobily to co potřebuji. Zatím jsem kromě toho supportu a motoru do toho nic neinvestoval (kromě času), teda ještě ložiska s guferama za 400 + nějaké to železo asi 200 jinak to je bez dalších velkých investic, hlavně mě baví si s tím hrát a rozšiřovat konstruktérské dovednosti. Každopádně až to bude hotové hodím sem video. Jak to funguje.

když myslíš že neseženeš...tak tím si se odsoudil k tomu že neseženeš. 
https://www.facebook.com/pages/Volman-% ... =bookmarks" onclick="window.open(this.href);return false;
Volman MN80, Volman M6 ,Volman NOF a další litinové smetí...
Volman MN80, Volman M6 ,Volman NOF a další litinové smetí...
Po tom přívalu negace musím dát taky něco pozitivního. Takže soustruh - to lože je základ a vůbec není špatný, bude už skvěle vycukaný, žádná horká jehla, po přerovnání se ani nehne.
Udělal bych na něm ale rybiny, pokud máš přístup ke fréze, tak si rybinovou frézu kup, D63/50st stojí tak do 500.-Kč. Použiješ ji i na příčný a malý suport - ten původní
vyhoď a tvůj návrh taky - takhle se to prostě nedělá, udělej jednoduchý návrh s rybinami. Motor 1.5 kW je poněkud velký, stačil by třeba 550 - 750W, na šrotištích
je jich mraky. Taky by šel motor z pračky včetně řízení - je tu na to vlákno. Převodovka z pincka - proč ne, znám pár starých soustruhů vylepšených převodovkou
z auta, ale není snadné ji začlenit, hlavně není moc kam nasadit řemenice. Asi by stačily stupňovité řemenice na vřetenu.
A otázka vyplatí-nevyplatí se to dělat - pokud tě to baví, tak je to hobby jako každé jiné. Zdejší negativisté mohou takto radit i jiným hobbystům - třeba namísto hodin
prosezených u vody jít na brigádu a ryby si koupit.
Udělal bych na něm ale rybiny, pokud máš přístup ke fréze, tak si rybinovou frézu kup, D63/50st stojí tak do 500.-Kč. Použiješ ji i na příčný a malý suport - ten původní
vyhoď a tvůj návrh taky - takhle se to prostě nedělá, udělej jednoduchý návrh s rybinami. Motor 1.5 kW je poněkud velký, stačil by třeba 550 - 750W, na šrotištích
je jich mraky. Taky by šel motor z pračky včetně řízení - je tu na to vlákno. Převodovka z pincka - proč ne, znám pár starých soustruhů vylepšených převodovkou
z auta, ale není snadné ji začlenit, hlavně není moc kam nasadit řemenice. Asi by stačily stupňovité řemenice na vřetenu.
A otázka vyplatí-nevyplatí se to dělat - pokud tě to baví, tak je to hobby jako každé jiné. Zdejší negativisté mohou takto radit i jiným hobbystům - třeba namísto hodin
prosezených u vody jít na brigádu a ryby si koupit.
Jo tak o tom ofrézovat to na rybiny jsem taky teď uvažoval, nejspíš to celé přefrézuju aby nebyly tak vylítané a ten radiální support jsem taky chtěl udělat rybinový. A k tomu motoru mi ještě říkali že to bude slabédoncarlos píše:Po tom přívalu negace musím dát taky něco pozitivního. Takže soustruh - to lože je základ a vůbec není špatný, bude už skvěle vycukaný, žádná horká jehla, po přerovnání se ani nehne.
Udělal bych na něm ale rybiny, pokud máš přístup ke fréze, tak si rybinovou frézu kup, D63/50st stojí tak do 500.-Kč. Použiješ ji i na příčný a malý suport - ten původní
vyhoď a tvůj návrh taky - takhle se to prostě nedělá, udělej jednoduchý návrh s rybinami. Motor 1.5 kW je poněkud velký, stačil by třeba 550 - 750W, na šrotištích
je jich mraky. Taky by šel motor z pračky včetně řízení - je tu na to vlákno. Převodovka z pincka - proč ne, znám pár starých soustruhů vylepšených převodovkou
z auta, ale není snadné ji začlenit, hlavně není moc kam nasadit řemenice. Asi by stačily stupňovité řemenice na vřetenu.
A otázka vyplatí-nevyplatí se to dělat - pokud tě to baví, tak je to hobby jako každé jiné. Zdejší negativisté mohou takto radit i jiným hobbystům - třeba namísto hodin
prosezených u vody jít na brigádu a ryby si koupit.
I:
1. 115
2. 197
3. 338
II.
1. 319
2. 547
3. 940