Vodící šrouby Tr16x4

Požadavky na výrobu dílů - poptávkové fórum
Pravidla fóra
Toto forum vyzaduje schvaleni prispevku moderatorem.
Odpovědět
rawen
Sponzor fora
Příspěvky: 1586
Registrován: 15. 3. 2008, 12:22
Bydliště: Prostějov

25. 11. 2008, 11:48

Nazdar,
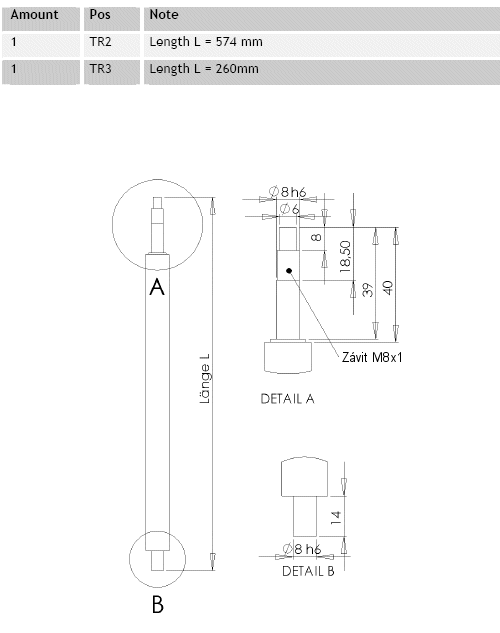
potřeboval bych vyrobit 4 kusy vodících šroubů z Tr16x4 v délkách 2x1280, 574, 260 (pravotočivé) s úpravou obou konců. Na jednom je soustružení nebo broušení na 8h6 (na ložiska), na druhém stejný průměr navíc se závitem M8x1. Přikládám původní "výkresy".
Materiál můžu já nebo výrobce nakoupit v TEA technik, část odměny možno dostat v letošní 54% hruškovici. :)

Radek

Edit: Nechci vyrábět trapéz z kulatiny ale vyrobit to z trapézové tyče. Myslel jsem, že je to napsané jasně...
Přílohy
tyč2.gif
tyč1.gif
tyč1.gif (8.02 KiB) Zobrazeno 3583 x
Naposledy upravil(a) rawen dne 26. 11. 2008, 4:17, celkem upraveno 1 x.
soustruh Bernardo 500, frézka Proxxon
(CNC Tron, CNC Proxxon MF70)
Uživatelský avatar
Radek-B
Příspěvky: 2137
Registrován: 13. 9. 2006, 11:09
Bydliště: V:Karlovice
Kontaktovat uživatele:

25. 11. 2008, 7:56

Ten sroub nakup v delkach treba v betzu. i smaticemi, a nech si zatocit pouze konce.
Nechavat delat tak dlouhe trapezaky je hloupost. Ono se to uz dnes valcuje a je to i presne. Ceny jsou uplne v poho.

www.betz.cz

RADEK
modernizace/repase CNC strojů a zařízení
automatizace/konstrukce
Josef
Sponzor fora
Příspěvky: 5682
Registrován: 19. 11. 2006, 9:25
Bydliště: Valašsko

25. 11. 2008, 8:06

Radek-B píše: Ono se to uz dnes valcuje a je to i presne.
RADEK
Jak od kterého výrobce. Některým kolísá soupání, jak už jsem někde psal. Kdyby byl někdo "Nevěřící Tomáš" mohl bych dokázat.
Uživatelský avatar
Radek-B
Příspěvky: 2137
Registrován: 13. 9. 2006, 11:09
Bydliště: V:Karlovice
Kontaktovat uživatele:

25. 11. 2008, 8:11

Tak mu usoustruz tr16x4 v delce 1280 :D dva mesice s toho nebudes spat. Vzdyt je to na vrazdu , kdyby to po mne chtel kamarad udelat NA KLASICE tak prestane byt kamaradem :D

O presnosti sem nepsal, podle mne mu z nabidkou prijde i v jake je to vyrobeno presnosti a pokud to nebude pravda tak to muze reklamovat ne ??

RADEK
modernizace/repase CNC strojů a zařízení
automatizace/konstrukce
Josef
Sponzor fora
Příspěvky: 5682
Registrován: 19. 11. 2006, 9:25
Bydliště: Valašsko

25. 11. 2008, 8:37

Já taky netrvdím, že je to brnkačka. Je to na facku (přinejmenším) hned ve dveřích. A to ještě nechtít lícovanou matici. V takové délce bych volil raději větší průměr. Jen jsem chtěl upozornit na přesnost. Jo, a že je to i přesné jsi opravdu napsal ty (tím ovšem nechci zavdávat příčinu k písemné hádce).
rawen
Sponzor fora
Příspěvky: 1586
Registrován: 15. 3. 2008, 12:22
Bydliště: Prostějov

26. 11. 2008, 4:14

Já nechtěl soustružit ten trapéz, ale jen upravit konce. Asi jsem to blbě napsal.

Radek
soustruh Bernardo 500, frézka Proxxon
(CNC Tron, CNC Proxxon MF70)
Uživatelský avatar
Bob
Příspěvky: 701
Registrován: 5. 10. 2007, 12:02
Bydliště: Slavkov u Brna
Kontaktovat uživatele:

26. 11. 2008, 4:07

Radku, ještě pouvažuj, jestli by nebylo lepší použít na délku 1280mm TR 18x4 nebo TR 20x4, na délce 1280mm už má TR 16x4 náběh k průhybu vlastní vahou - osobní skušenost, Bob
rawen
Sponzor fora
Příspěvky: 1586
Registrován: 15. 3. 2008, 12:22
Bydliště: Prostějov

26. 11. 2008, 6:14

Bob píše:Radku, ještě pouvažuj, jestli by nebylo lepší použít na délku 1280mm TR 18x4 nebo TR 20x4, na délce 1280mm už má TR 16x4 náběh k průhybu vlastní vahou - osobní skušenost, Bob
Nazdar,
podobně jako Wolf jsem koupil licenci na http://www.tron-cnc.de. Mimo jiné z důvodu kompletního vyřešení mechanické části. Nejsem strojař, abych posoudil průhyb trapézu, ale v tom stroji je lin. vedení na podložené tyči a trapéz kousíček nad ním jezdící ve zdvojených matkách - to považuju za podstatně tužší řešení než třeba jednu matici na celou tyč prostředkem Xového stolu, jak je často vidět.

Ke kšeftu: Momentálně mám úpravu tyčí rozjednanou, tak pozastavuju platnost tohoto vlákna. Děkuji všem za pomoc.

Radek
soustruh Bernardo 500, frézka Proxxon
(CNC Tron, CNC Proxxon MF70)
Odpovědět

Zpět na „Potřebuji vyrobit - vypomoc pri vyrobe“