Sustruzenie nerez #1

Požadavky na výrobu dílů - poptávkové fórum
Pravidla fóra
Toto forum vyzaduje schvaleni prispevku moderatorem.
Odpovědět
PBr
Příspěvky: 1031
Registrován: 16. 6. 2007, 8:21
Bydliště: Slovensky Grob
Kontaktovat uživatele:

8. 6. 2016, 1:35

Ahoj,

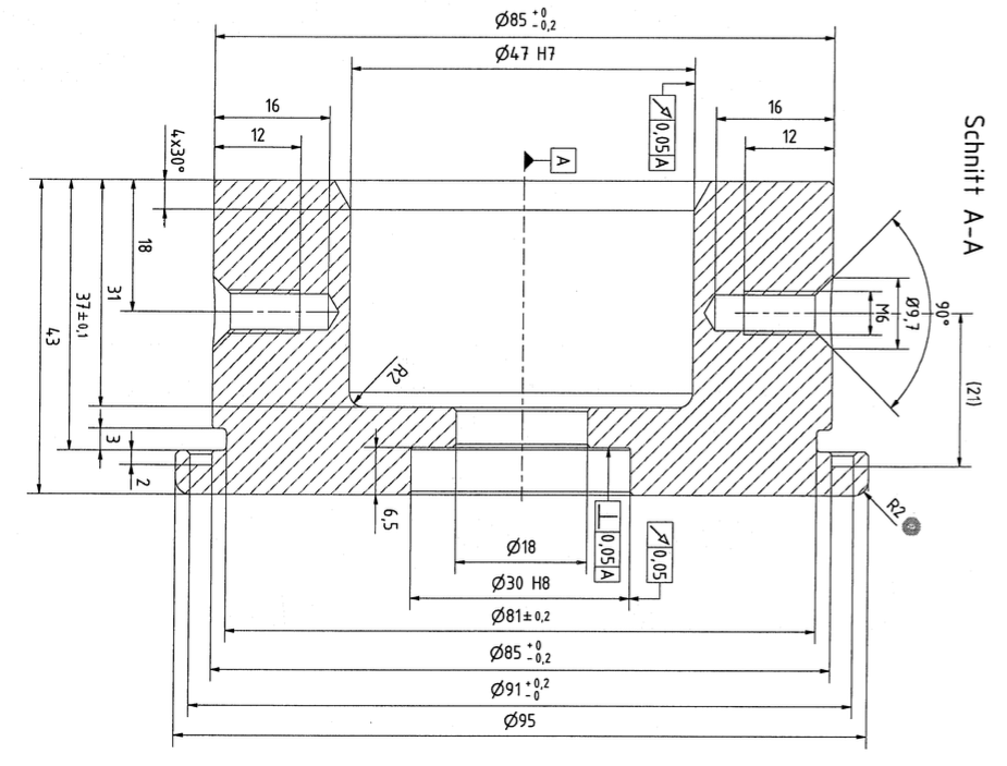
Mal by som pracu pre niekoho so sustruhom, CN. Pocet 30ks. Material 1.4301 + 3.1 B.
Podmienkou je dodrzanie rozmerov a dobry povrch atd...niektore rozmery sa budu validovat.

Za ponuky s terminmi a cenou voped dakujem
Přílohy
Screen Shot 2016-06-08 at 14.27.07.png
Odpovědět

Zpět na „Potřebuji vyrobit - vypomoc pri vyrobe“