Soustružení - ocel - jednorázovka

Požadavky na výrobu dílů - poptávkové fórum
Pravidla fóra
Toto forum vyzaduje schvaleni prispevku moderatorem.
Odpovědět
miroslav.simkovic
Příspěvky: 25
Registrován: 18. 3. 2017, 8:56

4. 5. 2024, 5:11

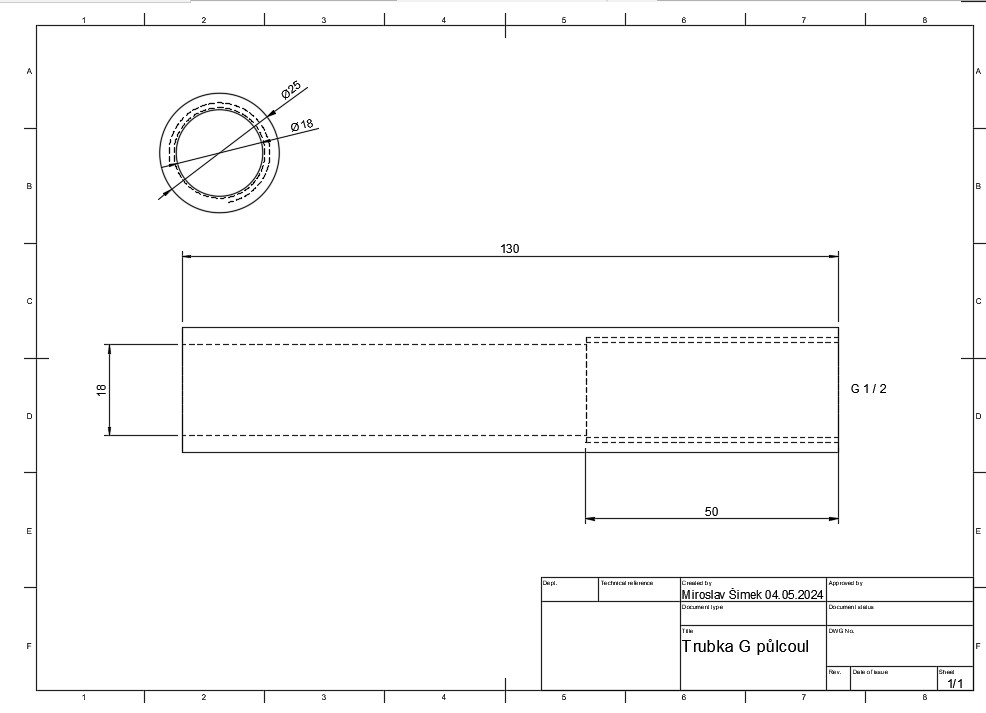
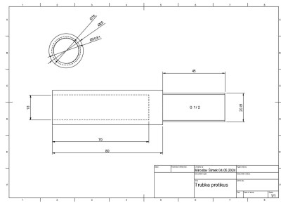
Zdravím, potřeboval bych na soustruhu vyřezat závity G 1/2 do trubek a tyčí viz obrázek...podmínkou je souosost, budou to prodlužovací nástavce k vrtáku ...materiál ocel, ideálka 11600, není ale podmínkou...dílce budou k sobě pomocí závitu přišroubované..... od každého dílce potřebuji 2 kusy, celkem tedy 4dílce....netřeba dbát zvýšené přesnosti...mohu poslat .stl, .step.....vyvolávací cena 1800,-. ....ozvěte se děkuji...
Přílohy
Trubka závit G výkres.jpg
Trubka závit G.jpg
Tyč závit G výkres.jpg
Tyč závit G.jpg
koranmir
Příspěvky: 75
Registrován: 20. 10. 2019, 8:34

6. 5. 2024, 6:23

Dobrý den, mohl bych vyrobit, jak rychle to potřebujete?
Jonáš
Příspěvky: 34
Registrován: 10. 1. 2023, 6:45

24. 6. 2024, 2:04

Rád vyrobím. Na počkání. Staší napsat SZ.
Volejte a pište na tel. a mail co zmíním.
SZ nečtu.
Odpovědět

Zpět na „Potřebuji vyrobit - vypomoc pri vyrobe“