Odladění čínských soustruhů řady 180x300
Ahoj, díky za pochvalu...
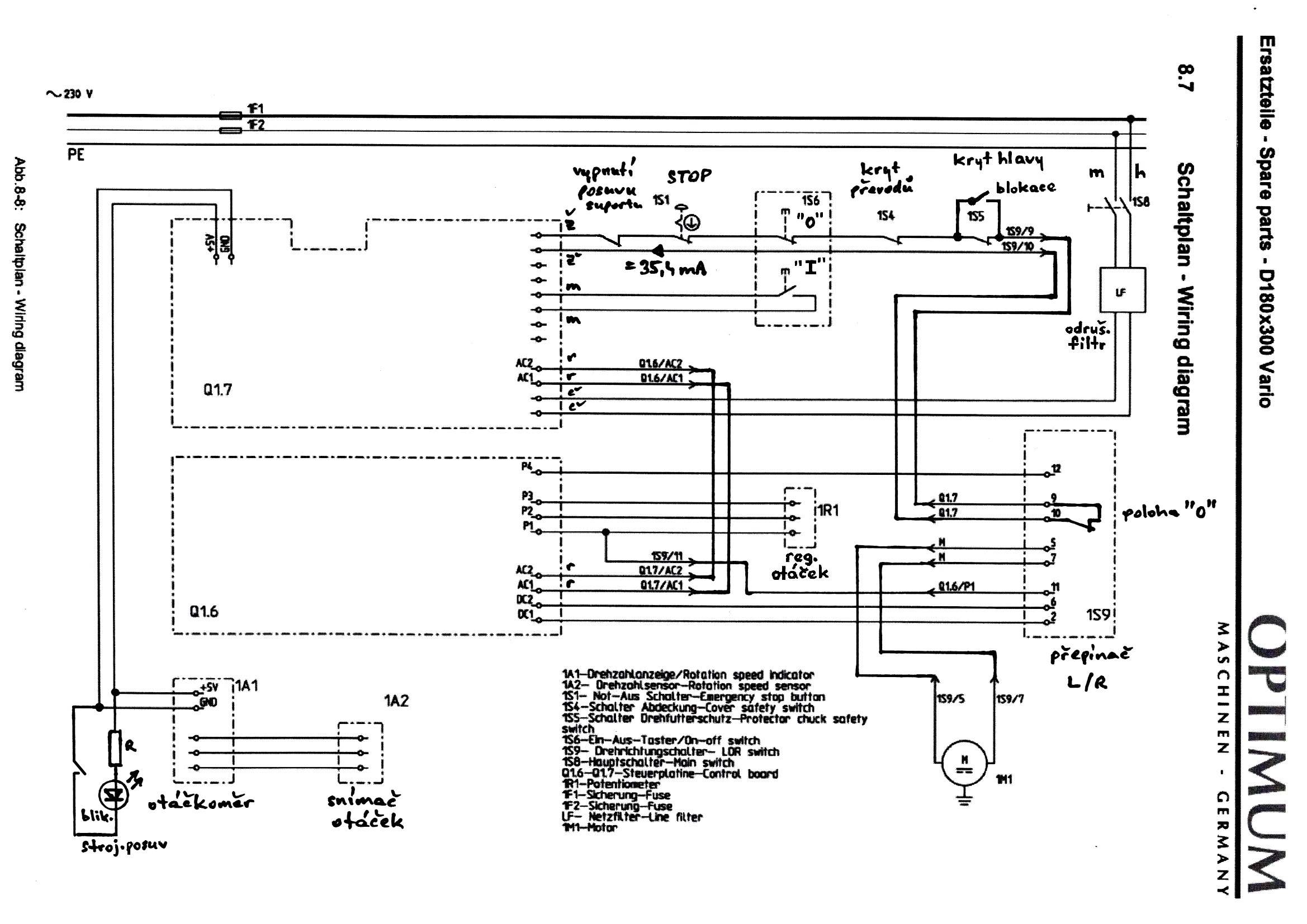
Zařazení a vyřazení pohonu šroubu strojního posuvu jsem udělal tak (viz obrázky), že jsem využil toho, že ta pravá tři ozubená kola jsou na kyvné kulise, která je dole zajištěna stahovacím šroubem. Ten šroub jsem vlastně jen prodloužil a vyvedl ven, kde je na něm ta ovládací hlavice, takže když se asi o čtvrt otáčky povolí a dá nadoraz nahoru, tak se ta pravá kola dostanou do záběru, kde se dotažením zajistí nebo se ze záběru naopak přesunutím na doraz dolů vyřadí, zajištění se zase provede dotažením toho šroubu asi o tu čtvrtotáčku. Aby ta kulisa jezdila ve správné dráze a neposunula se do boku doleva, tak je jen z drátu (nerez drát na výplet jízdního kola) uděláno jakési vedení, které ji tam nepustí. Díky výkyvnosti té kulisy to může fungovat na různé kombinace ozubených kol. No a jako asi zbytečnou věc jsem ještě osadil mikrospínač, který, když se ta kulisa dostane z výchozí polohy (převod rozpojen), tak sepne blikající LED diodu vedle indikace otáček, abych si všiml, že se kulisa nějak dostala z dolního dorazu a že by se mohla dostat kola nějak omylem do záběru, což by někdy mohlo být nebezpečné. Ta samoblikající LED dioda je napájena přes odpůrek z +5 V napájení otáčkoměru. Ještě schéma:
Zařazení a vyřazení pohonu šroubu strojního posuvu jsem udělal tak (viz obrázky), že jsem využil toho, že ta pravá tři ozubená kola jsou na kyvné kulise, která je dole zajištěna stahovacím šroubem. Ten šroub jsem vlastně jen prodloužil a vyvedl ven, kde je na něm ta ovládací hlavice, takže když se asi o čtvrt otáčky povolí a dá nadoraz nahoru, tak se ta pravá kola dostanou do záběru, kde se dotažením zajistí nebo se ze záběru naopak přesunutím na doraz dolů vyřadí, zajištění se zase provede dotažením toho šroubu asi o tu čtvrtotáčku. Aby ta kulisa jezdila ve správné dráze a neposunula se do boku doleva, tak je jen z drátu (nerez drát na výplet jízdního kola) uděláno jakési vedení, které ji tam nepustí. Díky výkyvnosti té kulisy to může fungovat na různé kombinace ozubených kol. No a jako asi zbytečnou věc jsem ještě osadil mikrospínač, který, když se ta kulisa dostane z výchozí polohy (převod rozpojen), tak sepne blikající LED diodu vedle indikace otáček, abych si všiml, že se kulisa nějak dostala z dolního dorazu a že by se mohla dostat kola nějak omylem do záběru, což by někdy mohlo být nebezpečné. Ta samoblikající LED dioda je napájena přes odpůrek z +5 V napájení otáčkoměru. Ještě schéma:
Naposledy upravil(a) pavlík dne 12. 10. 2020, 6:42, celkem upraveno 4 x.
Dík za obrázky i popis. Já mám bohužel trošku jinej soustruh (Noell) i když kulisa tam je taky. Musím popřemýšlet. Já jsem zvažoval něco jak jsem viděl u Myforda 10. Tam se pákou přesouvala na šroubu trubka s čepem. Je však potřeba přerušit šroub . Doplnit pouzdra blízko přesuvníku atd. Na toto je tam ale málo místa a chtělo by to nový, delší šroub. No mám to v hlavě a před náma dlouhé zimní večery, tak uvidím co mě napadne. Tvůj nápad bude třeba někoho, kdo má stejný soustruh, inspirovat. Ahoj.
Pavlíku, máš to pěkný. Dá se to vypínání posuvu mikrospínačem použít pro řezání závitů nebo bys to nedoporučoval?
Předpokládám že tu druhou upravu na strojní zapínání (vypínání) posuvu používáš pouze když chceš mikroposuv ručně přes zavitovou tyč.
Předpokládám že tu druhou upravu na strojní zapínání (vypínání) posuvu používáš pouze když chceš mikroposuv ručně přes zavitovou tyč.
Jo jo, já jedu převážně ručně (hloupý zvyk???) a tak mám strojní posuv prakticky stále mimo záběr. Ale občas, když mě to nějak napadne, tak strojní posuv použiju, když dělám delší díl.
Jinak to vypínání pro řezání závitů, tak, jak to bylo na tom ruském videu výše, určitě použiju, líbí se mi to.
Jinak to vypínání pro řezání závitů, tak, jak to bylo na tom ruském videu výše, určitě použiju, líbí se mi to.
Ten koncový vypínač právě u toho els a jemu podobných automatů je důležitej. Jeden se uklepne v číslíčku a havárka je na světě.
Jaké jsou zkušenosti s tím els, jak dobře se s tím dělá na takhle malém soustruhu?
Mam trochu smíšený pocit, přeci jen když soustružím tak si hraju, vždy unikátní kus. Nepříjde se při els o zpětnou vazbu, něco jako u auta automatické řazení - mám rád spojku a řadím podle zvuku motoru. Zase navolit stoupání jaké chci, ubírat rovnoměrně a několikrá - prostě nastavit a nestarat se o to je dost lákavý.
Jaké jsou zkušenosti s tím els, jak dobře se s tím dělá na takhle malém soustruhu?
Mam trochu smíšený pocit, přeci jen když soustružím tak si hraju, vždy unikátní kus. Nepříjde se při els o zpětnou vazbu, něco jako u auta automatické řazení - mám rád spojku a řadím podle zvuku motoru. Zase navolit stoupání jaké chci, ubírat rovnoměrně a několikrá - prostě nastavit a nestarat se o to je dost lákavý.
U mně je to podobné, když něco dělám, tak je to v naprosté většině jeden kus, v naprosté většině bez výkresu, jen z hlavy, prostě improvizace.
Než bych to naprogramoval, tak to mám třikrát hotové a ještě si to užívám, já jsem prostě stará škola. Zatím prakticky vše, co jsem zde publikoval, je děláno opravdu z hlavy bez výkresů, v tom je právě to kouzlo - nejdříve o tom pár dní přemýšlím a potom se do toho pustím a hraju si a často během práce koncepci upravuji a měním a mám radost z toho, jak se to rodí, takže mě přechod na CNC nebere, kdybych se tím živil nebo dělal opakovanou výrobu, tak by to bylo něco jiného, ale takhle ani náhodou, inu důchodce, který nemá co dělat...
Než bych to naprogramoval, tak to mám třikrát hotové a ještě si to užívám, já jsem prostě stará škola. Zatím prakticky vše, co jsem zde publikoval, je děláno opravdu z hlavy bez výkresů, v tom je právě to kouzlo - nejdříve o tom pár dní přemýšlím a potom se do toho pustím a hraju si a často během práce koncepci upravuji a měním a mám radost z toho, jak se to rodí, takže mě přechod na CNC nebere, kdybych se tím živil nebo dělal opakovanou výrobu, tak by to bylo něco jiného, ale takhle ani náhodou, inu důchodce, který nemá co dělat...
Keby si tam mal els, tak to mas 9krat hotove.
Uklepnut v ciselku sa mozes. Preto nastavim hodnotu aku dlzku chcem sustruzit, a tuknem to packy, aby chod noza bol od vretena. Okrrm toho vidis co zadavas.
Najorv hrubujem s posunom 0,21mm, potom ak treba tak na jemno 0,09mm, to mas 4 stlacenia tlacidla, zato lo kolesa neprehodis na sustruhu.
Koncak je fajn vec, len kto by ho stale posuval. Jemne som bural len raz, niekedy v zaciatkoch ked som to este nemal v ruke a oku.
Proste je to neporovnatelna robota.
Oproti klasike je to vlastne len jedna vec naviac, zadanie hodnoty drahy sustruzenia. Ostatne veci maju dospele sustruhy riesene mechanicky, nnapr volba stupania a smer posunu.
Cize els sa mimi sustruh v komforte obsluhy dostane na uroven velkeho sustruhu, a trosku za.
Sustruzenie slepej diery je radost.
Uklepnut v ciselku sa mozes. Preto nastavim hodnotu aku dlzku chcem sustruzit, a tuknem to packy, aby chod noza bol od vretena. Okrrm toho vidis co zadavas.
Najorv hrubujem s posunom 0,21mm, potom ak treba tak na jemno 0,09mm, to mas 4 stlacenia tlacidla, zato lo kolesa neprehodis na sustruhu.
Koncak je fajn vec, len kto by ho stale posuval. Jemne som bural len raz, niekedy v zaciatkoch ked som to este nemal v ruke a oku.
Proste je to neporovnatelna robota.
Oproti klasike je to vlastne len jedna vec naviac, zadanie hodnoty drahy sustruzenia. Ostatne veci maju dospele sustruhy riesene mechanicky, nnapr volba stupania a smer posunu.
Cize els sa mimi sustruh v komforte obsluhy dostane na uroven velkeho sustruhu, a trosku za.
Sustruzenie slepej diery je radost.
- Zdenek Valter
- Příspěvky: 5432
- Registrován: 9. 1. 2009, 5:16
- Bydliště: Ústí n. L.
V vlakne o els, vid odkaz hore, pripadne youtube.
Je pravda ze ja mam vlastne els. A rusi to uz dotiahli na omotorovanie priecneho suportu, na niektore veci fajn, lenze u, ta zavadzaju kable, problem s rozpajanim, ked chces tocit rucne.... Uz sa to blizi velmi cnc.
Je pravda ze ja mam vlastne els. A rusi to uz dotiahli na omotorovanie priecneho suportu, na niektore veci fajn, lenze u, ta zavadzaju kable, problem s rozpajanim, ked chces tocit rucne.... Uz sa to blizi velmi cnc.
- Zdenek Valter
- Příspěvky: 5432
- Registrován: 9. 1. 2009, 5:16
- Bydliště: Ústí n. L.
Díky projdu si to.
Hobbík - obráběč i 3D tiskař začátečník - strojní park je konečně instalován
- Zdenek Valter
- Příspěvky: 5432
- Registrován: 9. 1. 2009, 5:16
- Bydliště: Ústí n. L.
pokud chceš určitou činnost opakovat tak se už bez nějaké přípravy neobejdeš, ať už to je ručně vyrobený přípravek, nebo nakreslený model.pavlík píše: ↑17. 10. 2020, 11:02 U mně je to podobné, když něco dělám, tak je to v naprosté většině jeden kus, v naprosté většině bez výkresu, jen z hlavy, prostě improvizace.
Než bych to naprogramoval, tak to mám třikrát hotové a ještě si to užívám, já jsem prostě stará škola. Zatím prakticky vše, co jsem zde publikoval, je děláno opravdu z hlavy bez výkresů, v tom je právě to kouzlo - nejdříve o tom pár dní přemýšlím a potom se do toho pustím a hraju si a často během práce koncepci upravuji a měním a mám radost z toho, jak se to rodí, takže mě přechod na CNC nebere, kdybych se tím živil nebo dělal opakovanou výrobu, tak by to bylo něco jiného, ale takhle ani náhodou, inu důchodce, který nemá co dělat...
Pokud zvládneš modelovaní třeba s Fusion 360 pak se Ti otevírají možnosti nových technologií CNC, 3D Tisk atp.
Já se právě snažím i ten jeden kousek si nakreslit, protože mi pak zbyde dokumentace -> výkres.
Hobbík - obráběč i 3D tiskař začátečník - strojní park je konečně instalován
