Stránka 3 z 6
Re: Vřeteno ELTE AF60 6/2 RR
Napsal: 7. 12. 2016, 1:38
od Thomeeque
To dává rozhodně smysl, díky. Ale ta moje pravá varianta (levou už jsem zavrhl) je co se masa i toho, co píšeš teď, týče celkem v pohodě, ne?
Re: Vřeteno ELTE AF60 6/2 RR
Napsal: 7. 12. 2016, 1:58
od Francotirador
Ale jo, já jen nemám rád (vizuálně) když hlava imbusu není zapuštěná po celém obvodu (působí to na mě dojmem, nejdřív řež potom měř) a za druhé mi přijde že jsi s dírama pro hlavy šroubů až příliš těsně vývrtu objímky - při sebemenším uhnutí vrtáku narušíš jeho plochu (u varianty kdy jsou v blízkosti vývrtu díry o průměru pro dřík šroubu tedy menším pak mezi vývrtem a dírou nějaké maso zbyde).
Re: Vřeteno ELTE AF60 6/2 RR
Napsal: 7. 12. 2016, 2:32
od Thomeeque
Aha. Teď koukám, že standardní záhlubník pro M4 imbus má průměr 8mm, já tam mám nakresleno 7.5mm, takže na plochu by se to v tom jednom místě dostalo téměř určitě. Originální pouzdro se zrovna s tímto mimochodem taky nemaže, ale uznávám, že je to trochu něco jinýho
Re: Vřeteno ELTE AF60 6/2 RR
Napsal: 7. 12. 2016, 10:51
od Thomeeque

- EDIT: překótováno
Nechávám to širší, abych k tomu případně mohl něco montovat, ale ještě uvidim. Napadlo mě, když to stahnu nepřitažený k Zku, prohne se to hlavně dole (nejslabší místo) a udělá to na dosedací ploše oblouk, na druhou stranu je to asi zanedbatelný (origo držák je na tom myslim stejně), zvlášť u mýho stroje.. Ty M4 imbusy jsou dlouhý 65mm, sežene se to jakš takš normálně (delší si můžu zkrátit, pokud je třeba 70 standardnější)?
Opět dík za názor, T.
Re: Vřeteno ELTE AF60 6/2 RR
Napsal: 8. 12. 2016, 8:24
od Zdenek Valter
Taková kacířská - nebylo by lepší ten držák udělat nějak takhle?
Re: Vřeteno ELTE AF60 6/2 RR
Napsal: 8. 12. 2016, 8:44
od Francotirador
Thomeeque píše:…Ty M4 imbusy jsou dlouhý 65mm, sežene se to jakš takš normálně (delší si můžu zkrátit, pokud je třeba 70 standardnější)?…
Úplně běžně asi v nabídce nebudou. Dle ČSN 02 1143 je pro M4 závit rozsah délek dříku 6 až 50 mm, a dle nové ČSN EN ISO 4762 (DIN 912) je normální / jmenovitá délka dříku dokonce jen 6 až 40 mm.
Ale nevěš hlavu, kdybys je náhodou nesehnal tak holt zaměstnáš mazlíka a uděláš si délky jaké chceš.
Re: Vřeteno ELTE AF60 6/2 RR
Napsal: 8. 12. 2016, 8:49
od Francotirador
Zdenek Valter píše:Taková kacířská - nebylo by lepší ten držák udělat nějak takhle?
Jejda, to už jsem někde viděl - že by o stránku dříve?

_
Strana 2
http://www.c-n-c.cz/posting.php?mode=qu ... 7#pr232477" onclick="window.open(this.href);return false;
Re: Vřeteno ELTE AF60 6/2 RR
Napsal: 8. 12. 2016, 9:21
od robokop
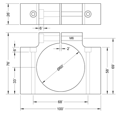
jestli myslis tohle
tak z hlediska kvalitniho upnuti musis tu diru pro vreteno udelat pokudmozno nejpresneji s prumerem vretena
ma to dve vyhody
vpodstate zadna deformace objimky tj. i jejich dosedacek na Z
plne kruhovy styk s plastem vretena
Re: Vřeteno ELTE AF60 6/2 RR
Napsal: 8. 12. 2016, 9:37
od Thomeeque
Francotirador píše:Thomeeque píše:…Ty M4 imbusy jsou dlouhý 65mm, sežene se to jakš takš normálně (delší si můžu zkrátit, pokud je třeba 70 standardnější)?…
Úplně běžně asi v nabídce nebudou. Dle ČSN 02 1143 je pro M4 závit rozsah délek dříku 6 až 50 mm, a dle nové ČSN EN ISO 4762 (DIN 912) je normální / jmenovitá délka dříku dokonce jen 6 až 40 mm.
Ale nevěš hlavu, kdybys je náhodou nesehnal tak holt zaměstnáš mazlíka a uděláš si délky jaké chceš.
Tady mají M4x70 a někde jsem viděl i 65, které nebyly skladem, rozhodim sítě (na mazlikovi bych neuměl ten imbus šestihran, který bych rád).
Ještě přemýšlím, jak moc troufalé je jít s celkovou délkou upnutí ze souvislých cca 69mm u originálního pouzdra na cca 2x25mm (z hlediska potenciání deformace těla vřetena a potřebné pevnosti upnutí). Mohl bych je asi nechat udělat širší případně bych mohl mít tři (střední by se upínal M5 imbusy), ale obojímu bych se rád vyhnul.. tělo vřetena působí dost bytelně, takže si myslím, že ho to nerozhodí a 2x25mm by taky mělo držet fest, ale to jsou z mojí strany jen dojmy.
Dík, T.
EDIT: @
robokop: rozumim, dík.
Zdenek Valter píše:Taková kacířská - nebylo by lepší ten držák udělat nějak takhle?
Jestli jsi to myslel tak, že by i ze spoda mělo být víc "masa", tak to asi ano, ale já chci být osou vřetena co nejblíž vozíku kvůli zbytku stroje, je to kompromis. Teď jsou tam 3mm, instinktivně jsem si netroufl jít níž

Re: Vřeteno ELTE AF60 6/2 RR
Napsal: 8. 12. 2016, 10:22
od Francotirador
robokop píše:jestli myslis tohle
tak z hlediska kvalitniho upnuti musis tu diru pro vreteno udelat pokudmozno nejpresneji s prumerem vretena
ma to dve vyhody
vpodstate zadna deformace objimky tj. i jejich dosedacek na Z
plne kruhovy styk s plastem vretena
Podobně jsem dělal držák na fortunku:
- Všechny plochy ofrézované na čisto kromě dosedací, ta ponechána s přídavkem.
-
Vývrt soustružený (v nezávislé čtyřčelisťovce) také s přídavkem.
-
Proříznuta drážka nejtenčí pilovou frézou co jsem našel, vyvrtány díry pro šrouby a vyřezán závit.
-
Do drážky prázdné objímky vložen cigaretový papírek a stažena šroubem (strojařštější by asi byla 2 setinová spároměrka).
-
Objímka opět vycentrována ve čtyřčelisťovce a soustružen vývrt napřesno dle skutečného změřeného průměru fortunky.
- Poté fortunka upnuta do objímky (již bez papírku

) a celá sestava upnuta na frézku dosedací plochou nahoru. Objímka za boky ve svěráku, přičemž byl hodinkami (s plochým hrotem) kontrolován nulový sklon trnu upnutého ve fortunce (ve skutečnosti to nebyl trn, ale drážkovací fréza

). Přídavek odfrézován (úběr vycházel z požadované vzdálenosti čela frézy od plochy trnu o známém průměru).
Ta šaškárna s přídavkem a egalizací dosedací plochy by se asi možná dělat ani nemusela - já to vlastně tenkrát ani nedělal z důvodu srovnání deformace vzniklé stažením objímky (to byl jen vedlejší efekt), ale kvůli dodržení osové výšky objímky tj. eliminovat zbytkovou chybu centrování ve čtyřpakně - hledat na každé ploše čtyřhranu minimum na hodinkách a při každým pootočení navíc ještě vyjíždět kvůli malému zdvihu hodinek (stojánek na suportu) nebylo zrovna komfortní, tak jsem přesnosti centrování moc nedůvěřoval.
Re: Vřeteno ELTE AF60 6/2 RR
Napsal: 8. 12. 2016, 10:52
od Francotirador
Thomeeque píše:…
Tady mají M4x70 a …
No vida tak to máš vyhráno, jen uklafneš 5 mm a je to.
To mi připomnělo, že jsem cca před měsícem o víkendu ihned potřeboval vratový šrouby, v Bauhausu (nebo to byl Hornbach

) jsem koupil šrouby - ještě jsem se radoval, že mají délku přesně co potřebuji a nebudu je muset řezat (podle cedulky, šrouby jsem metrem samozřejmě neměřil). Zaplatím, jedu dom a tam zjistím, že jsou přesně o výšku matice kratší

Tak jsem se zase vrátil zpět (to jsem si ještě myslel, že jsem se přehmátl o regál - občas v obchoďákách zápasím jestli cenovka vlastně patří ke zboží nad ní nebo pod ní). No to bylo překvapení, když jsem se s úděsem dozvěděl rozuzlení, že délku šroubů i vrutů (všech sakum prdum bez ohledu na to jestli jsou zapuštěný či nikoliv) udávají i s hlavou - prý to mám chápat jako délku zboží (délku kusu)

.
Je to asi stejné jako filozofie překupníků, které moc nezajímá co vlastně na e-shopech nabízí. Např. když jsem vybíral kompresor, tak jsem na stránkách, kde ho nabízeli nejlevněji, našel jiný celkový rozměry než v manuálu staženém z jiných stránek. Na dotaz kde je chyba, jestli skutečně jde o daný model jsem se dozvěděl, že jsou prý vlastně správně i ty rozměry. On je totiž nezajímá, jak je velký kompresor, takže dávají do specifikace jak je velká krabice (a mám to chápat jako celkové rozměry zboží tj. logicky i s obalem)

.
Re: Vřeteno ELTE AF60 6/2 RR
Napsal: 8. 12. 2016, 11:06
od Thomeeque
Asi s tim nic nenaděláme, ale dobrý vědět.
EDIT: Btw. taky přidám info, u Rouska max. M4 x 50 (asi jedou dle ČSN 02 1143

)
Re: Vřeteno ELTE AF60 6/2 RR
Napsal: 8. 12. 2016, 11:26
od Zdenek Valter
Francotirador píše:Zdenek Valter píše:Taková kacířská - nebylo by lepší ten držák udělat nějak takhle?
Jejda, to už jsem někde viděl - že by o stránku dříve?

_
Strana 2
http://www.c-n-c.cz/posting.php?mode=qu ... 7#pr232477" onclick="window.open(this.href);return false;
jo jo díky.

Re: Vřeteno ELTE AF60 6/2 RR
Napsal: 8. 12. 2016, 1:33
od chb
co kupuju šrouby tak klasické a Imbus mají délku po hlavu (tedy jen ta válcová část) a uváděná délka zapuštěných je pak včetně hlavy. - chápu to jako délku ve vztahu k síle spojovaného materiálu
Re: Vřeteno ELTE AF60 6/2 RR
Napsal: 8. 12. 2016, 2:03
od Francotirador
chb píše:co kupuju šrouby tak klasické a Imbus mají délku po hlavu (tedy jen ta válcová část) a uváděná délka zapuštěných je pak včetně hlavy. - chápu to jako délku ve vztahu k síle spojovaného materiálu
Ano, chápeš to správně a délka je takto kótována v normách.
Já chtěl jen poukázat, že supermarkety jsou schopný si označování zjednodušit a popis na cenovkách nemusí odpovídat (pak si zákazník odnese domů šrouby kratší, než si důvěřivě myslí, že kupuje).