Díly na parní strojek

Požadavky na výrobu dílů - poptávkové fórum
Pravidla fóra
Toto forum vyzaduje schvaleni prispevku moderatorem.
Odpovědět
Baxi.bax
Příspěvky: 573
Registrován: 9. 5. 2008, 7:45
Bydliště: Dvůr Králové nad Labem
Kontaktovat uživatele:

7. 4. 2015, 6:44

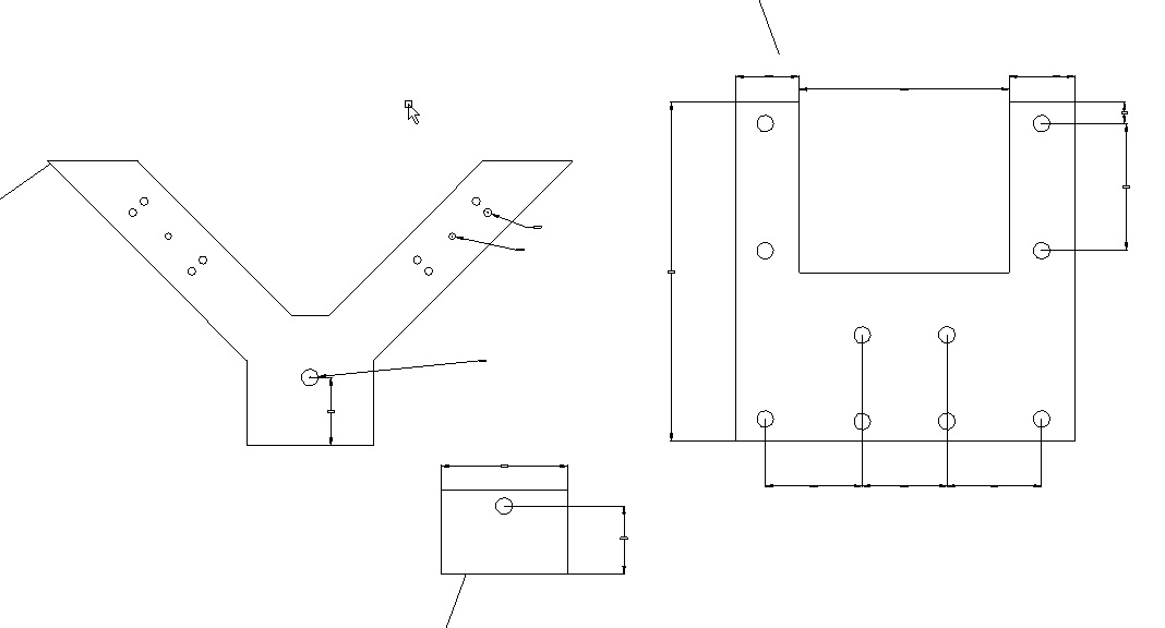
Měl by někdo zájem vyfrézovat základnu a tělo ve tvaru vé na model parního strojku z 6-8 mm mosazi? Plánek bych dodal v DXF. Základna je asi 80x60 mm tělo Vé je přibližně stejné.
Přílohy
véčko.jpg
Baxi.bax
Příspěvky: 573
Registrován: 9. 5. 2008, 7:45
Bydliště: Dvůr Králové nad Labem
Kontaktovat uživatele:

12. 4. 2015, 12:24

Stále aktuální. Nemusí to být z mosazi, třeba vypálit z plechu, nebo frézovat z hliníku. Materiál nemám. Aktuální to je z toho důvodu, že ti kteří se mi ozvali nejsou schopni ani odpovědět. Cenu respektuji, ale bylo by dobré vědět aspoň přibližnou cenu.
Přílohy
strojek na pálení.dxf
(44.86 KiB) Staženo 296 x
Filas09
Příspěvky: 13
Registrován: 17. 4. 2015, 9:50

17. 4. 2015, 10:09

Dobrý den mohu,vás požádat o DXF data do emailu filipo20@seznam.cz Obratem bych vám poslal cenu a termín kdy bych Vá mohl díly dodat.
Uživatelský avatar
Thomeeque
Příspěvky: 9427
Registrován: 30. 1. 2012, 10:20
Bydliště: Mimo ČR

17. 4. 2015, 1:30

Baxi.bax píše:Stále aktuální. Nemusí to být z mosazi, třeba vypálit z plechu, nebo frézovat z hliníku. Materiál nemám. Aktuální to je z toho důvodu, že ti kteří se mi ozvali nejsou schopni ani odpovědět. Cenu respektuji, ale bylo by dobré vědět aspoň přibližnou cenu.
Přiložený soubor je DWG (AC1027..), nikoliv DXF a např. můj CAD ho neotevře (DWG obecně umí, ale toto je na něj asi příliš nová verze).
mimooborová naplavenina • kolowratský zázrak™ • NPS • GCU • HirthCalc • ncDP.ino
Baxi.bax
Příspěvky: 573
Registrován: 9. 5. 2008, 7:45
Bydliště: Dvůr Králové nad Labem
Kontaktovat uživatele:

19. 4. 2015, 4:58

Omlouvám se za ten překlep, mám dva soubory DWG a DXF asi jsem sáhl vedle. Jsem domluvený s Marou, tak snad to dopadne. Díky všem za nabídky.
Odpovědět

Zpět na „Potřebuji vyrobit - vypomoc pri vyrobe“