Rychloupínač nožů UNI-MAX

Uživatelský avatar
Zdenek Valter
Příspěvky: 5460
Registrován: 9. 1. 2009, 5:16
Bydliště: Ústí n. L.

26. 2. 2009, 4:40

Dostal jsem několik soukromých zpráv s dotazem na rychloupínač nožů který používám.

Koupil jsem ho zde:
http://www.uni-max.cz/rychloupinaci-nas ... lava-51/d/

A jsem s ním celkem spokojen.
Sada obsahuje pět dílů.
Jediný problém je že prodejce nenabízí další držáky do rychloupínače.
To se mi díky jejich relativní jednoduchosti podařilo zajistit jinde (jak jinak než výrobou na zakázku u známého ;-).
Přílohy
Posunutý rychloupínač<br />Zde je nůž v přibližně stejné poloze co na původní nožové hlavě
Posunutý rychloupínač
Zde je nůž v přibližně stejné poloze co na původní nožové hlavě
Šroub na uchycení hlavy v nové pozici
Šroub na uchycení hlavy v nové pozici
Detail distanční trubičky
Detail distanční trubičky
Trubička a šroub
Trubička a šroub
Původní šroub pro uchycení původní nožové hlavy
Původní šroub pro uchycení původní nožové hlavy
Nůž na stružení děr
Nůž na stružení děr
Pohled zepředu
Pohled zepředu
Držák v původním místě<br />Je poměrně hodně vysazen - proto jsem řešil i uchycení v novém místě
Držák v původním místě
Je poměrně hodně vysazen - proto jsem řešil i uchycení v novém místě
Pohled zepředu
Pohled zepředu
Sada komplet (bez hlavičky) v tom držáku mám nůž na strružení děr.
Sada komplet (bez hlavičky) v tom držáku mám nůž na strružení děr.
Uživatelský avatar
Aeroomni
Příspěvky: 1179
Registrován: 14. 1. 2007, 9:16
Bydliště: Zem
Kontaktovat uživatele:

26. 2. 2009, 5:18

Moh bys tu poslení fotku otočit nožema dopředu prosím?? :D
Koukam někdo si tu dělá jasnej průzkum, i mě přišlo několik mailů, odpověděl jsme všem, ale odpovědi na adresu strosova.pavlina@gmail.cz se vrací zpět. Takže ten kdo se ptá, at si tu opraví adresu na správnou jinak se nic nedoví
:wink:
rawen
Sponzor fora
Příspěvky: 1586
Registrován: 15. 3. 2008, 12:22
Bydliště: Prostějov

26. 2. 2009, 5:45

Ve srovnání s Promou i Bowem je zřetelný rozdíl v ceně. V čem je problém??? Jen ve značce?

Radek
soustruh Bernardo 500, frézka Proxxon
(CNC Tron, CNC Proxxon MF70)
Uživatelský avatar
Zdenek Valter
Příspěvky: 5460
Registrován: 9. 1. 2009, 5:16
Bydliště: Ústí n. L.

26. 2. 2009, 8:21

Takže na přání fotky na pokračování ;-)
Přílohy
komplet  i s dodělávaným držákem
komplet i s dodělávaným držákem
Detail dodělávaného držáku
Detail dodělávaného držáku
Pohled specielně pro Aeroomni ;-)
Pohled specielně pro Aeroomni ;-)
a opět z vrchu
a opět z vrchu
Uživatelský avatar
Zdenek Valter
Příspěvky: 5460
Registrován: 9. 1. 2009, 5:16
Bydliště: Ústí n. L.

26. 2. 2009, 8:30

No a ještě pro ty kdo uvažují o koupi aby se jim pak lépe pracovalo ;-)

První je náčrtek těla držáku - tohle doma ne každý zvládne ;-)
Pro frézaře celkem jednoduché ;-)

No a ty dírky a dořezání závitu se dá zvládnout i doma se stojanem na vrtačku ;-)
Přílohy
telodrzakunoze.PNG
Drzaknoze.PNG
k
Příspěvky: 814
Registrován: 12. 8. 2008, 12:00
Bydliště: Kosice SK

27. 2. 2009, 7:07

rawen píše:Ve srovnání s Promou i Bowem je zøetelný rozdíl v cenì. V èem je problém??? Jen ve znaèce?

Radek
bow aj proma drziak ma moznost drziak nasunut v lubovolnom otoceni, zaistuje drziak excentrom ktory to pritiahne k stredovemu drazkovanemu naboju.


Drziak popisovany v tomto vlakne je podobny aky ma na svojom sustruhu aj proxxon a umoznuje nasuvat drziak len rovnobezne lebo kolmo na obrobok ( resp. ine natocenia len ak natocite cely drziak ale tam je opakovatelnost s pozadovanou presnostou otazna).

Dalsi rozdiel bude v pevnosti a velkosti .. nakolko aj proma aj bow maju drziaky (za nepekne velky peniaz) aj na polmetrovy priemer a noze 25mm vysoke.

V kazdom pripade aj toto je prinos oproti klasickej nozovej hlave kde opakovatelnost upevnenia noza je dana len sikovnostou operatora a aj nahodou ;)

BTW. predava niekto nieco podobne ale s drazkouna noz 25-ku ? (samozrejme v prijatelnej cene)
Uživatelský avatar
Zdenek Valter
Příspěvky: 5460
Registrován: 9. 1. 2009, 5:16
Bydliště: Ústí n. L.

1. 3. 2009, 11:29

k píše:Drziak popisovany v tomto vlakne je podobny aky ma na svojom sustruhu aj proxxon a umoznuje nasuvat drziak len rovnobezne lebo kolmo na obrobok ( resp. ine natocenia len ak natocite cely drziak ale tam je opakovatelnost s pozadovanou presnostou otazna).

Dalsi rozdiel bude v pevnosti a velkosti .. nakolko aj proma aj bow maju drziaky (za nepekne velky peniaz) aj na polmetrovy priemer a noze 25mm vysoke.

V kazdom pripade aj toto je prinos oproti klasickej nozovej hlave kde opakovatelnost upevnenia noza je dana len sikovnostou operatora a aj nahodou ;)

BTW. predava niekto nieco podobne ale s drazkouna noz 25-ku ? (samozrejme v prijatelnej cene)
Je to poměr ceny a výkonu. Mě to službu udělalo.
Co se týče natočení pak je to bez problémů ovšem pochopitelně pro opakovatelné natočení je třeba nějaký přípravek třeba zarážku.
Uživatelský avatar
picom
Příspěvky: 2338
Registrován: 11. 8. 2006, 2:07
Bydliště: Praha

1. 3. 2009, 4:58

Já používám
http://cgi.ebay.com/Wedge-Type-6-PC-Qui ... otohosting

držáky se dají se koupit samostatně

větší rozměry jsou trochu dražší třeba
http://cgi.ebay.com/ws/eBayISAPI.dll?Vi ... %26otn%3D4
Uživatelský avatar
Zdenek Valter
Příspěvky: 5460
Registrován: 9. 1. 2009, 5:16
Bydliště: Ústí n. L.

1. 3. 2009, 6:57

picom píše:Já používám
http://cgi.ebay.com/Wedge-Type-6-PC-Qui ... otohosting

držáky se dají se koupit samostatně

větší rozměry jsou trochu dražší třeba
http://cgi.ebay.com/ws/eBayISAPI.dll?Vi ... %26otn%3D4
Jo ty jsou pěkný co sstojí ten jednotlivý držák ?
Popřípadě kolik stojí doprava sem ?
Uživatelský avatar
Zdenek Valter
Příspěvky: 5460
Registrován: 9. 1. 2009, 5:16
Bydliště: Ústí n. L.

1. 3. 2009, 7:00

Když už jsme v tom zahraničí tak pro soustruhy Ala Proma 300 , Seig nebo třeba můj Uni-Max je doporučován velikostí teto:

http://www.littlemachineshop.com/produc ... uctID=2461

V odkazu dole napravo na další držáky jehož cena činí cca 16 USD.
k
Příspěvky: 814
Registrován: 12. 8. 2008, 12:00
Bydliště: Kosice SK

2. 3. 2009, 6:45

nema niekto ten druhy pinac od unimaxu ? (http://www.uni-max.cz/rychloupinaci-nas ... lava-41/d/) ? rozmerovy nacrtok ?
Uživatelský avatar
Zdenek Valter
Příspěvky: 5460
Registrován: 9. 1. 2009, 5:16
Bydliště: Ústí n. L.

27. 3. 2009, 12:40

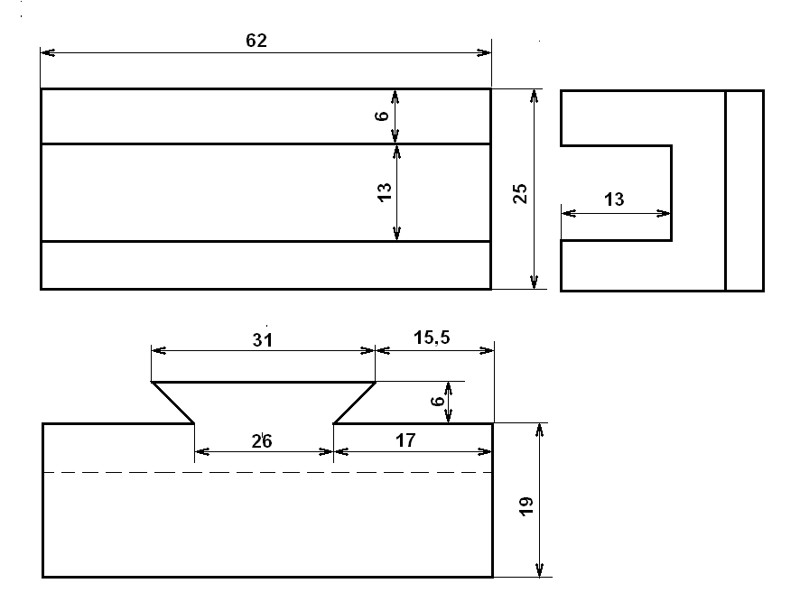
Rozměry držáku se dvěma rybinami jsou 62x62x39 mm.
Rozměry vlastních nástrojových držáků jsou v náčrtku
Grad
Příspěvky: 2084
Registrován: 13. 7. 2014, 9:32

31. 10. 2014, 7:26

Zdenek Valter píše:Dostal jsem několik soukromých zpráv s dotazem na rychloupínač nožů který používám.

Koupil jsem ho zde:
http://www.uni-max.cz/rychloupinaci-nas" onclick="window.open(this.href);return false; ... lava-51/d/

A jsem s ním celkem spokojen.
Sada obsahuje pět dílů.
Jediný problém je že prodejce nenabízí další držáky do rychloupínače.
To se mi díky jejich relativní jednoduchosti podařilo zajistit jinde (jak jinak než výrobou na zakázku u známého ;-).
Mají na to teď akční cenu a tak mne to tady zaujalo, hlavně ta informace že nenabízí náhradní držáky. Našel by se tady někdo, kdo by je dokázal nabídnout za rozumnou cenu? Nebo doporučí někdo jinou sadu za dobrou cenu?
Grad
Příspěvky: 2084
Registrován: 13. 7. 2014, 9:32

2. 11. 2014, 8:56

Mám prosbu na majitele tohoto upinače, kteří dělali nějaké úpravy té základny. Z jakého materiálu je ta kostka? Jde to vrtat a frézovat?

Ani na stránkach výrobce jsem nenašel výšku té kostky, ale Indové tam zmiňuji, že všechny díly jsou hardened - asi kalené :( .
Zdá se mne odhadem, že ji budu muset nechat ofrézovat. Určitě budu muset zvětšit centrální díru pro uchycení k suportu...
Předem dík za pomoc.
Uživatelský avatar
Zdenek Valter
Příspěvky: 5460
Registrován: 9. 1. 2009, 5:16
Bydliště: Ústí n. L.

13. 2. 2015, 8:28

Grad píše:Mám prosbu na majitele tohoto upinače, kteří dělali nějaké úpravy té základny. Z jakého materiálu je ta kostka? Jde to vrtat a frézovat?

Ani na stránkach výrobce jsem nenašel výšku té kostky, ale Indové tam zmiňuji, že všechny díly jsou hardened - asi kalené :( .
Zdá se mne odhadem, že ji budu muset nechat ofrézovat. Určitě budu muset zvětšit centrální díru pro uchycení k suportu...
Předem dík za pomoc.
Sorry, že tak pozdě - vrtat se to dá, mám pocit, že dokonce, že ta kostka je z eloxovanéo duralu.
Zítra bych Ti jí oměřil.
Hobbík - obráběč i 3D tiskař začátečník - strojní park je konečně instalován
Odpovědět

Zpět na „pro soustruh“