Objimka

Požadavky na výrobu dílů - poptávkové fórum
Pravidla fóra
Toto forum vyzaduje schvaleni prispevku moderatorem.
Odpovědět
majo477
Příspěvky: 873
Registrován: 28. 5. 2014, 8:39

16. 12. 2018, 11:23

V piatok mi prišla ponuka na nacenenie objimok od zákazníka s ktorým uz niekolko rokov spolupracujem,kedže som zameraný na kusovú,malosériovú výrobu,potreboval by som poradit prípadne pomocť s výrobou,,jedná sa o velké série 10000a viac kusov,,
IMG-1772bbac2d6894f3f296332a19595f68-V.jpg
,,,,,,,,
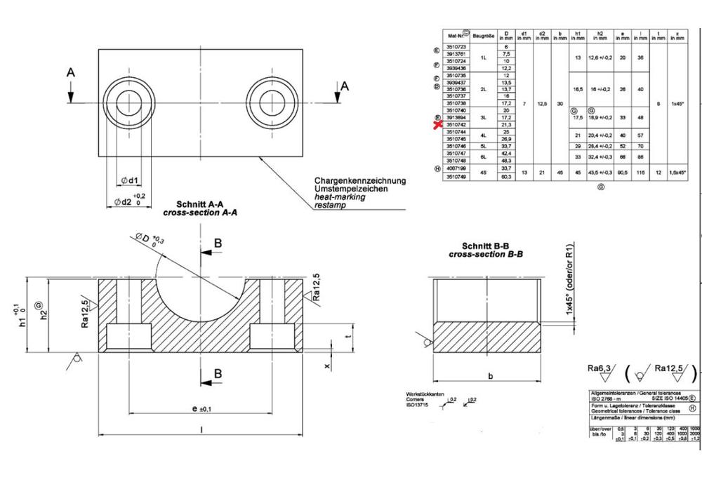
Materiál 1.4404, valcovaná pásovina. Pre prvú dávku budú použité štandardné rozmery: 30x15, 30x20, 30x25, 30x30, 30x35, 45x45. Pre neskoršiu výrobu uvažujeme presne navalcované rozmery s menším prídavkom. Pre výrobu to nie je problém, termín je tam 3 mesiace a dávka nad 500 kg od rozmeru. Pásovina bude narezaná na dĺžku presne nahotovo na CNC pásovej píle. Zákazník nám to tak odsúhlasil. Taktiež rozmer – šírka B=30 alebo 45 mm sa nebude obrábať . Tiež sa neobrába spodná plocha – len horná kde je vybranie, k tomu otvory a zrazenia. Množstvá sú veľké a projekt má potenciál na niekoľko rokov. Zasielam len jeden výkres, všetky sú obdobné. Máte záujem a myslíte si, že budete mať aj kapacitu? Vyberme ako základný typ 3510742. Prosím cenu pre tento typ za čisté opracovanie – za 1 kus.
majo477
Příspěvky: 873
Registrován: 28. 5. 2014, 8:39

27. 12. 2018, 2:34

Ukončené,zmazať...
Odpovědět

Zpět na „Potřebuji vyrobit - vypomoc pri vyrobe“