Ahoj všichni,
potřeboval bych poradit s usazením soustruhu SV18 RD, převážíme ho z dílny kde byl zabetenovaný v podlaze do dílny, kde to takhle řešit nelze. Máte někdo zkušenosti s výrobou nějakého fundamentu pod soustruh, aby se nemusel zabetonovávat a nemusela se hloubit díra pro vanu na chladicí emulzi?
Díky za odpovědi.
Fundament SV18 RD
-
hermanek666
- Příspěvky: 3
- Registrován: 5. 6. 2014, 5:37
A ta vana na chladicí emulzi tam nevadí? Mě přijde, že má být oproti soustruhu trochu utopená.
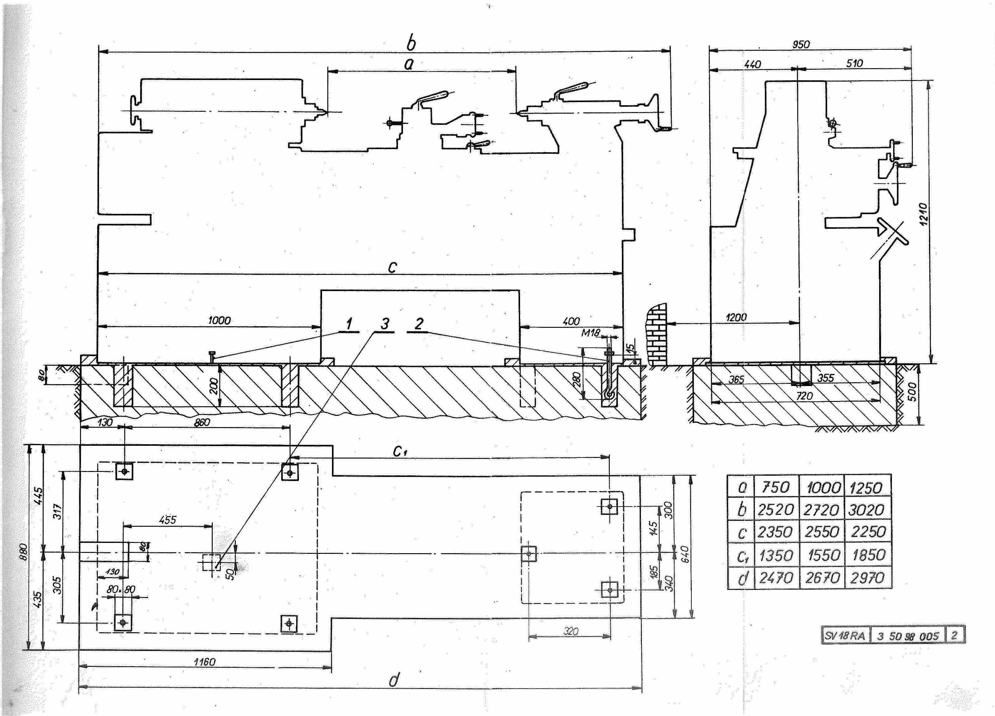
Tady máš základový plán na SV18 RA, ty máš sice SV18 RD ale to na věci nic nemění, v soustruhu je pouze SS motor a ovládací skříň elektro je bokem, ostatní zůstává stejné. Jinak v manuálu se píše, že soustruh lze postavit i na betonovou podlahu, pokud je dostatečně pevná. Manuál si můžeš stáhnout např. u Tumlíka (http://www.tumlikovo.cz" onclick="window.open(this.href);return false;)
Soustruh: S-28 Žebrák
Stolní vrtačka: TOS V10A
Pásová pila: G5013W/400
Stolní vrtačka: TOS V10A
Pásová pila: G5013W/400
k tomu mě zrovna napadnul jeden dotaz...
když posadím soustruh do dílny na zem a došteluji těmi šrouby. Zůstane to stát pouze na šroubech. Je to tak správně nebo se pod to něco má dát ? díky a promiˇ%n že ti to tu zasírám
když posadím soustruh do dílny na zem a došteluji těmi šrouby. Zůstane to stát pouze na šroubech. Je to tak správně nebo se pod to něco má dát ? díky a promiˇ%n že ti to tu zasírám
SN320,SUI 32 CNC,Maho 700 CNC, Mikron UME 600, Boley BKN 100C, Brother TC 201
-
hermanek666
- Příspěvky: 3
- Registrován: 5. 6. 2014, 5:37
Super, já myslel, že se od RA liší nějak víc, tohle celkem usnadňuje situaci. Díky moc. 
Tak běžně se mašiny vyrovnaly na šroubech, tak aby mezi spodní dosedací plochou stroje a podlahou byla mezera cca 12-15mm (šrouby podložené plechama, aby se nezatlačovaly do betonu), pak se udělal šaluňk (ohrádka) z prken a mašina se podlila řídkým betonem, takže tedy nestojí jen na těch šroubech, ale vlasně celou svojí dosedací plochou na podlaze.lukin1156 píše:k tomu mě zrovna napadnul jeden dotaz...
když posadím soustruh do dílny na zem a došteluji těmi šrouby. Zůstane to stát pouze na šroubech. Je to tak správně nebo se pod to něco má dát ? díky a promiˇ%n že ti to tu zasírám
Přikládám část manuálu k mojí S-28, kde je to popsáno. Myslím, že to platí všeobecně i pro jiné mašiny.
Soustruh: S-28 Žebrák
Stolní vrtačka: TOS V10A
Pásová pila: G5013W/400
Stolní vrtačka: TOS V10A
Pásová pila: G5013W/400