Chlapi,
na kolik by jste ocenili tuto mašinu (+-autobus)? http://stroje.bazos.cz/inzerat/31227354 ... 33-CNC.php
znáte/používáte někdo ŘS co to má (Siemens sinumerik 3M), nějaké zkušenosti, postřehy, ...
dá se to v budoucnu přestavět na jiný ŘS ? je tu někdo, komu by se do přestavby chtělo (myslím komerčně)?
Předem díky za jakoukoliv připomínku či postřeh!
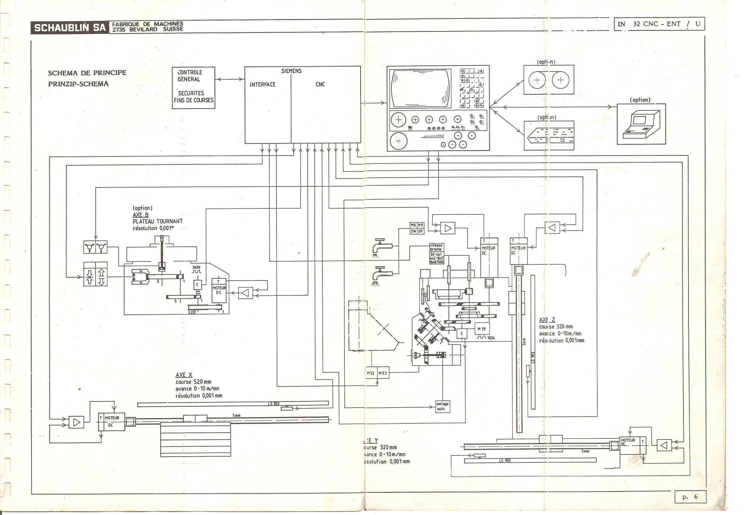
Schaublin 33 CNC
- Gulliver64
- Příspěvky: 453
- Registrován: 1. 8. 2010, 7:52
- Bydliště: Kuřim
Modelová zařízení pro slévárny, hliníkové odlitky. První CNC frézka postavená v r.2003 ."Dřeváček" - r.2010. Zapřísáhlý uživatel MACH3 ver.2.63 .
schaublin možná bude navyšovat svoji cenu svým jménem, ale během dvou tří let jsem viděl a případně i koupil podobné mašiny za cenovku třeba - 40-80000, samozřejmě najdeš i takové kteří za to chtějí 250..
předělat jde v podstatě cokoliv .. jen tomu dát ten čas.. dneska když to předěláš i s pohonama tak za serva dáš cca 50 za systém od 30ti (3(4)osy) a "jen" to pospojuješ do sebe a jeto.. a nebo pojedeš třeba na EMCčku kde koupíš počítač mesu atd a jseš v tom asi za 20-30 a můžeš použít i původní pohony, ale dá to podstatně víc práce..
předělat jde v podstatě cokoliv .. jen tomu dát ten čas.. dneska když to předěláš i s pohonama tak za serva dáš cca 50 za systém od 30ti (3(4)osy) a "jen" to pospojuješ do sebe a jeto.. a nebo pojedeš třeba na EMCčku kde koupíš počítač mesu atd a jseš v tom asi za 20-30 a můžeš použít i původní pohony, ale dá to podstatně víc práce..
věčný rýpal,který musí mít poslední slovo, odpůrce low-cost zařízení končících v naprosté většině případů v hromadě šrotu
uživatelé hýbátek, kteří mají z mých příspěvků celoživotní trauma nechť si mé příspěvky VYPNOU
uživatelé hýbátek, kteří mají z mých příspěvků celoživotní trauma nechť si mé příspěvky VYPNOU
To se obáváš správně. Nemají tam ceny, protože jsou to ceny nehorázné. Když jim napíše někdo o cenu, tak se nestačí divit. Také proto mají tyhle mašiny v nabídce několik let.
[URL=https://matchnow.life]Super casual Dating[/URL]
třeba tohle mluví za sebe
2 stejné fotky u jedné cena 60 tis a porucha motoru a druhý překupník to nabízí i s vyzkoušením ...
http://stroje.bazos.cz/inzerat/31163886 ... 16-CNC.php" onclick="window.open(this.href);return false;
http://stroje.bazos.cz/inzerat/30092332 ... 16-CNC.php" onclick="window.open(this.href);return false;
já už koukám jen na německý ebay
2 stejné fotky u jedné cena 60 tis a porucha motoru a druhý překupník to nabízí i s vyzkoušením ...
http://stroje.bazos.cz/inzerat/31163886 ... 16-CNC.php" onclick="window.open(this.href);return false;
http://stroje.bazos.cz/inzerat/30092332 ... 16-CNC.php" onclick="window.open(this.href);return false;
já už koukám jen na německý ebay
XpertMill, Gravos, Ninos, Galaad
IQ156
-1500Kč, -520Kč, -1čokoláda, - 28000Kč
www.freeair.cz www.rotexelectric.eu www.retrofitcnc.cz
IQ156
-1500Kč, -520Kč, -1čokoláda, - 28000Kč
www.freeair.cz www.rotexelectric.eu www.retrofitcnc.cz
od překupníků to nemá cenu, ty je maj nasyslené v hale a nic jim to nežere, chce to kupovat přímo od majitele.. ten dostane nabídku od překupníka za cenu šrotu, pak si na tom pár desítek set tisíc přihodí a nabízí dál.. majitel to prodá klidně za 10kč/kg protože se toho chce zbavit hned a nebude čekat na zájemce.. za pár let takovejhle mašin bude plno..
věčný rýpal,který musí mít poslední slovo, odpůrce low-cost zařízení končících v naprosté většině případů v hromadě šrotu
uživatelé hýbátek, kteří mají z mých příspěvků celoživotní trauma nechť si mé příspěvky VYPNOU
uživatelé hýbátek, kteří mají z mých příspěvků celoživotní trauma nechť si mé příspěvky VYPNOU
- robokop
- Site Admin
- Příspěvky: 23276
- Registrován: 10. 7. 2006, 12:12
- Bydliště: Praha
- Kontaktovat uživatele:
ne tohodle schaublina ale tech predelavek tu uz par je
ja jich mam taky par za sebou
elektronika je +- stejna takze v zasade nejde o konkretni typ stroje co potrebujes predelat ale konkretni typ elektroniky/pohonu
neomezuj se tedy na schaublina v tech dotazech
toho schaublina budes resit posleze
na prvnim miste jsou vzdy pohony protoze je to pripadne velika investice
99% starsich stroju to ma rizene +-10V a pravitka nebo encodery
tam max budes potrebovat prevodniky signalu
vse zalezi na typovem oznaceni komponent a a dostupnosti dokumentace
kdyz neni doc. ke komponentam tak je casto alespon vytah v doc. ke stroji
tj zapojeni, cisla a vyznam pinu
to bohate staci
druhej level je treba vymena nastroje nebo prevodovka
tam budto neco najdes v dokumentaci stroje nebo to musis vyzkoumat jak to funguje a dopsat nejake sekvence do linuxcnc aby to makalo
ja jich mam taky par za sebou
elektronika je +- stejna takze v zasade nejde o konkretni typ stroje co potrebujes predelat ale konkretni typ elektroniky/pohonu
neomezuj se tedy na schaublina v tech dotazech
toho schaublina budes resit posleze
na prvnim miste jsou vzdy pohony protoze je to pripadne velika investice
99% starsich stroju to ma rizene +-10V a pravitka nebo encodery
tam max budes potrebovat prevodniky signalu
vse zalezi na typovem oznaceni komponent a a dostupnosti dokumentace
kdyz neni doc. ke komponentam tak je casto alespon vytah v doc. ke stroji
tj zapojeni, cisla a vyznam pinu
to bohate staci
druhej level je treba vymena nastroje nebo prevodovka
tam budto neco najdes v dokumentaci stroje nebo to musis vyzkoumat jak to funguje a dopsat nejake sekvence do linuxcnc aby to makalo
Vsechna prava na chyby vyhrazena (E)