1mm drazka v 15142

Technologicke postupy a měřidla v dílně
Polesovsky
Příspěvky: 504
Registrován: 28. 5. 2011, 9:30
Bydliště: Brno

16. 3. 2020, 5:20

Tak ted resim drazku sirky 1mm hloubka 37mm v rohach Rmax 0,5mm. Je to drazka, co lze castecne vyhrubovat kotoucovkou , ale rohy asi budu muset dojiskrit hloubickou.
Jaky je Vas nazor kdyz potrebuji 16 stejnech drazek na valci. Dratovkou to nelze - jsou to uzavrene drazky.

Dik za rady
Josef
Sponzor fora
Příspěvky: 5688
Registrován: 19. 11. 2006, 9:25
Bydliště: Valašsko

16. 3. 2020, 5:23

Třetí rozměr?
Polesovsky
Příspěvky: 504
Registrován: 28. 5. 2011, 9:30
Bydliště: Brno

21. 3. 2020, 7:02

delka uzavrene drazky 120mm, obrobek valec delky 140mm.
testone
Sponzor fora
Příspěvky: 7422
Registrován: 3. 12. 2010, 5:56
Bydliště: Slaný

21. 3. 2020, 8:15

Proč by nešlo drátořezem dělat uzavřené drážky?
elektroerozivní vrtačkou si vyvrtají pilotní díru, lze již od pr. cca 0,2mm
protáhnou drát
vyříznou potřebné
na konci drát uštípnou
hotovo
Obvykle se dějí věci obvyklé. Méně často se dějí věci neobvyklé a zcela vyjímečně se dějí věci vyjímečné...
Masturn 40 CNC, Hermle UWF1200H CNC a pár klasik
http://www.radialengine.cz" onclick="window.open(this.href);return false;
http://www.autopejsek.cz" onclick="window.open(this.href);return false;
Uživatelský avatar
stanik84
Příspěvky: 2550
Registrován: 3. 8. 2016, 9:29

21. 3. 2020, 8:16

Podle mě je jen do určité hloubky, ne skrz...
testone
Sponzor fora
Příspěvky: 7422
Registrován: 3. 12. 2010, 5:56
Bydliště: Slaný

21. 3. 2020, 8:21

stanik84 píše: 21. 3. 2020, 8:16 Podle mě je jen do určité hloubky, ne skrz...
elektroerozivní vrtačka není hloubička
jako nástroj se používá mosazná trubička pr. od asi 0,2 do 3mm
trubička se otáčí, jiskří a posunuje, dírou v ní se do místa řezu žene tlaková voda která tu díru vyplachuje
provrtat skrz těch 37mm odhaduju tak na +- 15 min s prstem v nose
Obvykle se dějí věci obvyklé. Méně často se dějí věci neobvyklé a zcela vyjímečně se dějí věci vyjímečné...
Masturn 40 CNC, Hermle UWF1200H CNC a pár klasik
http://www.radialengine.cz" onclick="window.open(this.href);return false;
http://www.autopejsek.cz" onclick="window.open(this.href);return false;
Uživatelský avatar
stanik84
Příspěvky: 2550
Registrován: 3. 8. 2016, 9:29

21. 3. 2020, 8:24

Já vím, co to je, mám tu už na propalovačku splašený všechny komponenty. Destilka půjde z Agie, abych nemusel nosit kanystry :-) .

Možná by šlo udělat měděnou matrici a https://www.youtube.com/watch?v=oQSaaBYbdl8
Polesovsky
Příspěvky: 504
Registrován: 28. 5. 2011, 9:30
Bydliště: Brno

21. 3. 2020, 7:03

testone píše: 21. 3. 2020, 8:21
stanik84 píše: 21. 3. 2020, 8:16 Podle mě je jen do určité hloubky, ne skrz...
elektroerozivní vrtačka není hloubička
jako nástroj se používá mosazná trubička pr. od asi 0,2 do 3mm
trubička se otáčí, jiskří a posunuje, dírou v ní se do místa řezu žene tlaková voda která tu díru vyplachuje
provrtat skrz těch 37mm odhaduju tak na +- 15 min s prstem v nose
Diky za informaci. Skusim dohledat v Brne elektroerozivní vrtačku.
Polesovsky
Příspěvky: 504
Registrován: 28. 5. 2011, 9:30
Bydliště: Brno

29. 9. 2020, 4:49

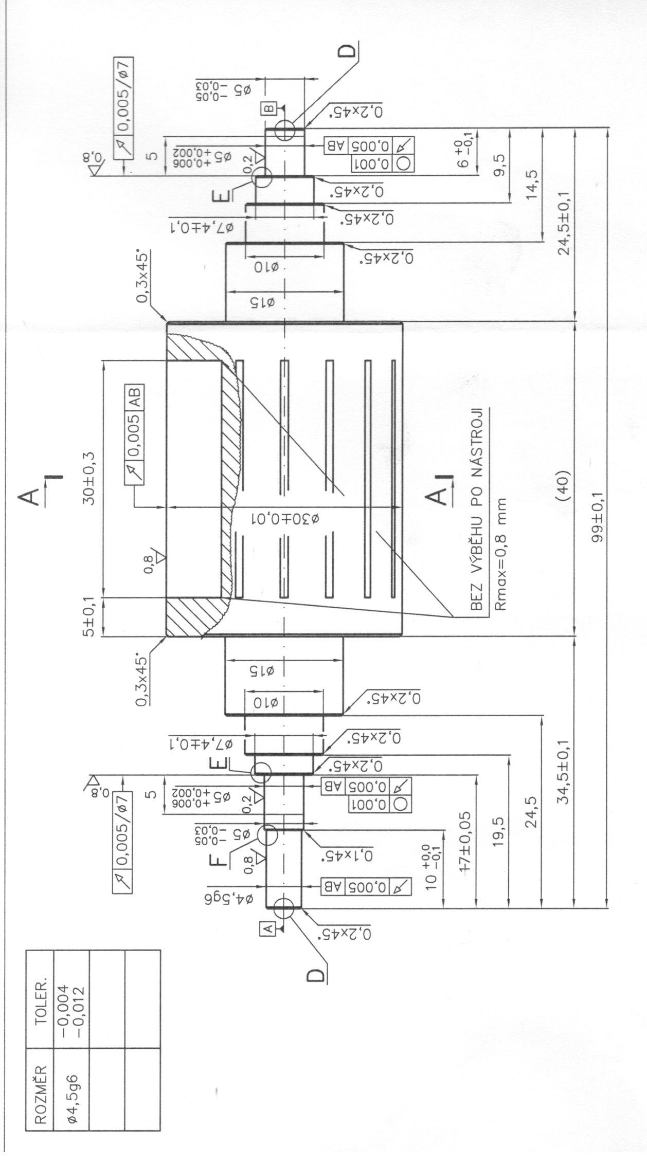
Zdravim vsechny posilam vykres a potrebuji vyrobit drazky. Vse soustruzene dokazem jen ty drazky. Diky za nabidky pro 2 Ks. Ovsem jak na to mne taky zajima.
Přílohy
draz1.jpg
draz2.jpg
Uživatelský avatar
bobik
Příspěvky: 4556
Registrován: 11. 12. 2007, 7:48
Bydliště: Okres Klatovy

29. 9. 2020, 5:43

Co tam dát dvě příruby? Pak by to šlo vydrážkovat tím kotoučkem nebo říznout na drátu.
Polesovsky
Příspěvky: 504
Registrován: 28. 5. 2011, 9:30
Bydliště: Brno

29. 9. 2020, 5:46

nelze. Musi to byt jeden kus
jergus.balaz
Příspěvky: 1723
Registrován: 24. 6. 2020, 8:41
Kontaktovat uživatele:

29. 9. 2020, 8:47

Zaujímavý projekt, hlavne tie hodnoty obvodového hádzania, kruhovitosti a drsnosti. Ale k veci. Tie drážky by som riešil hlbičkou, na polohovanie by sa hodil nejaký jednoúčelový prípravok.
BalazKovo.sk
r4cv
Příspěvky: 2847
Registrován: 8. 12. 2009, 8:32
Bydliště: Topoľčany

29. 9. 2020, 8:53

nie je to k téme, ale spomenul som i na výraz zo školy: technologickosť konštrukcie, to je to, čo tu chýba.
Dawe
Příspěvky: 2952
Registrován: 8. 10. 2013, 6:18

29. 9. 2020, 11:08

jergus.balaz píše: 29. 9. 2020, 8:47 Zaujímavý projekt, hlavne tie hodnoty obvodového hádzania, kruhovitosti a drsnosti...
Vypada to jako polotovar nejakeho vysokorychlostniho rotoru (mozna malicke elektrovreteno?) tak proto asi ty nasponovane geometricke tolerance. Ale ta drsnost?
TOS S28, DIY CNC, Holzmann ZS-40HS, Prusa Mk3s+MMU2s, Bambu X1C Combo
milan584
Příspěvky: 2127
Registrován: 12. 5. 2009, 2:17
Bydliště: na jihu

30. 9. 2020, 5:25

jergus.balaz píše: 29. 9. 2020, 8:47 Zaujímavý projekt, hlavne tie hodnoty obvodového hádzania, kruhovitosti a drsnosti. Ale k veci. Tie drážky by som riešil hlbičkou, na polohovanie by sa hodil nejaký jednoúčelový prípravok.
Vypadá to jako bakalářská práce nějakého "produkta" :shock: z současného školství.
btw - s těma drážkama a hloubičkou - doporučuji si zkusit to poptat u někoho, kdo se erozí rutinně živí - CO to bude stát.
To samý to broušení - to taky bude víc :mrgreen: než veselý.
Odpovědět

Zpět na „Technologie a měření“