Frézka na dřevo svépomocí, koncept

Hrabosh
Příspěvky: 12
Registrován: 31. 12. 2020, 9:49

13. 2. 2021, 10:34

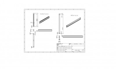
Dobrá ... tak já vám ukážu. Ukážu vám, co jsem nakreslil.
Ram.JPG
drawing.JPG
Moje představa je taková, že rám bych udělal z profilů I 100. Do podélných kusu bych nechal vyfrézovat 1mm hlubokou drážku pro lineární vedení TRH20 o délce 800mm, a ve spod budou 3 vyfrézované plochy.

Tyto dva krajní dílce budou podpírat 3 profily I 100, které budou mít taky vyfrézované plochy, kterými na sobě budou ležet.

Stáhnu je k sobě a svařím. Celý to bude mít zhruba 50kg, ale je to jen rám, pod tím bude samozřejmě nějaká konstrukce, aby to stálo ...
Modros
Příspěvky: 2115
Registrován: 31. 3. 2019, 7:58

13. 2. 2021, 10:42

Projdi si část fora a zjistíš že na profilu I stavět stroj je tu už považováno za sprosté slovo. :D hodně štěstí v diskuzi
Masso, stroje všemožný, autoservis, amatérské závody Nissan GTR
zverodoktor
Příspěvky: 3719
Registrován: 3. 6. 2007, 9:49
Bydliště: Bratislava

14. 2. 2021, 7:17

Pár dní dozadu tu boli v inzercíí nové hliníkové konštrukčné profily za vcelu lákavú cenu. Neporozmýšľaš robiť ten rám (stroj) radšej s toho?
SU32, MN80, FN25, ISEL4433, Jakobsen SJ25, N1, VS16, Anycubic Kossel
Uživatelský avatar
Charon
Sponzor fora
Příspěvky: 6460
Registrován: 27. 7. 2019, 4:31
Bydliště: Praha

14. 2. 2021, 8:40

Hlavne ze to mas krasne nakreslene :lol: Posledni dobou mi pripada, ze nakreslit to pocitacem staci a ono to vznikne samo. Ja mam osklive vykresy tuzkou od ruky a funguje to.
SM16A, FN20, 3E710B, CDC7-2, HO02, CO2laser, Fiber.. propagator www.atreon.cz
Hrabosh
Příspěvky: 12
Registrován: 31. 12. 2020, 9:49

14. 2. 2021, 8:47

Modros píše: 13. 2. 2021, 10:42 Projdi si část fora a zjistíš že na profilu I stavět stroj je tu už považováno za sprosté slovo. :D hodně štěstí v diskuzi
Proč? Zatím jsem nic hroznýho nenašel.
zverodoktor píše: 14. 2. 2021, 7:17 Pár dní dozadu tu boli v inzercíí nové hliníkové konštrukčné profily za vcelu lákavú cenu. Neporozmýšľaš robiť ten rám (stroj) radšej s toho?
Já jsem si myslel, že ty Icka zajistí vetší tuhost. Ty hliníkové profily jsem pak chtel použít případně na portál, po kterým se bude pohybovat vřeteno z pohonem ...

Akorát nevím, co mi na frézování takovejch ingotů řekne místní kovoobráběč.
Uživatelský avatar
Thomeeque
Příspěvky: 9552
Registrován: 30. 1. 2012, 10:20
Bydliště: Mimo ČR

14. 2. 2021, 8:52

Charon píše: 14. 2. 2021, 8:40 Hlavne ze to mas krasne nakreslene :lol: Posledni dobou mi pripada, ze nakreslit to pocitacem staci a ono to vznikne samo. Ja mam osklive vykresy tuzkou od ruky a funguje to.
S trochou praxe je to na tom počítači rychlejší než tužkou od ruky.
mimooborová naplavenina • kolowratský zázrak™ • NPS • GCU • HirthCalc • ncDP.ino
testone
Sponzor fora
Příspěvky: 7553
Registrován: 3. 12. 2010, 5:56
Bydliště: Slaný

14. 2. 2021, 8:55

Modros píše: 13. 2. 2021, 10:42 Projdi si část fora a zjistíš že na profilu I stavět stroj je tu už považováno za sprosté slovo. :D hodně štěstí v diskuzi
...... protože se tu furt dokola a dokola opakují ty samé chyby
I profil je dostatečně tuhý a pevný (protože ho rukou neohnu a praštit se o něj bolí)
je rovný, protože když leží na podlaze tak se nehoupe
je to dostatečný materiál, protože ho všude mají a dá se najít ve zbytkách a nic jiného neznám
nemám moc peněz, takže musím od počátku začít z těch nějlevnějších věcí co najdu vedle ve šrotě
a na začátku stavby si dovedu představit jen to, že 1m I100 je o 50,- než ...., to že ve finále (ke kterému to na 99% nedospějě) je cena těchhle 3 íček asi tak 0,1% celku a to nemluvím o ceně práce)
je to marný, je to marný, je to marný
takovýhle návrh se tu objevuje pravidelně 2x do měsíce už 20 let zpátky
ukažte mi 2 projekty dotažené do konce
ztráta času se tím zabývat
.....
pro autora - než začne tahat vedle ze šrotu ty íčka, nechť vytáhne za šuplíku zalamovací nůž, Herkules, školní pravítko a kus kartonové krabice a zkusí si to postavit z kartonu
.....
sorry za zkažené iluze v krásném nedělním ránu
Obvykle se dějí věci obvyklé. Méně často se dějí věci neobvyklé a zcela vyjímečně se dějí věci vyjímečné...
Masturn 40 CNC, Hermle UWF1200H CNC a pár klasik
http://www.radialengine.cz" onclick="window.open(this.href);return false;
http://www.autopejsek.cz" onclick="window.open(this.href);return false;
zverodoktor
Příspěvky: 3719
Registrován: 3. 6. 2007, 9:49
Bydliště: Bratislava

14. 2. 2021, 9:18

Konštrukcia nieje iba o druhu materiálu, ale aj o jeho tvare. Rebrovanie a výplne dokážu robiť zázraky. Nie nadarmo sa to volá konštrukčný profil. Samozrejme, nesmieš na frézku použiť ten, čo sa z neho vyrábajú reklamné vitríny.
Pre inšpiráciu, aj profesionálne stroje bývajú z týchto profilov a to aj pomerne veľké. Ak sa to dobre navrhne, je má to dostatočnú pevnosť. A je to lego, sú k tomu spojky, skrutky, uholníky, vložky do drážok... Stačí nakrátiť profily na dĺžku, čo ide bez problémov a presne aj doma pokosovou pílou s kotúčom na hliník. Naviac sú tieto profily aj dosť rovné.

https://www.google.com/search?q=isel+cn ... 66&bih=607
SU32, MN80, FN25, ISEL4433, Jakobsen SJ25, N1, VS16, Anycubic Kossel
potraviny
Příspěvky: 1965
Registrován: 17. 9. 2009, 10:05
Bydliště: Most
Kontaktovat uživatele:

14. 2. 2021, 9:22

Vůbec se toho neboj, taky jsem stavěl z profilů a jsem spokojen
viewtopic.php?t=13194
Modros
Příspěvky: 2115
Registrován: 31. 3. 2019, 7:58

14. 2. 2021, 9:29

potraviny píše: 14. 2. 2021, 9:22 Vůbec se toho neboj, taky jsem stavěl z profilů a jsem spokojen
viewtopic.php?t=13194
proč mu radíš takovou kokotinu? ty máš snad ty profily metr od sebe?
Masso, stroje všemožný, autoservis, amatérské závody Nissan GTR
testone
Sponzor fora
Příspěvky: 7553
Registrován: 3. 12. 2010, 5:56
Bydliště: Slaný

14. 2. 2021, 10:19

ještě jedno moudro - radu pro konstruktéry podobných konstrukcí si dovolím
jednoduché laciné ověření vhodnosti konstrukce
1) zvedněte tu navrženou konstrukci za jeden roh do vzduchu
2) prašťte do toho kladivem
3) Zvoní to? Chvěje se to? Tak znova a lépe...
4) Je to hluchý? Opravdu? Pokud ano, fajn, můžu pokračovat.
...
Bod 1-3 ani není nutno provádět fyzicky. Stačí si to představit. Pokud si nejsem schopen chování toho svařence představit, platí bod 3).
Obvykle se dějí věci obvyklé. Méně často se dějí věci neobvyklé a zcela vyjímečně se dějí věci vyjímečné...
Masturn 40 CNC, Hermle UWF1200H CNC a pár klasik
http://www.radialengine.cz" onclick="window.open(this.href);return false;
http://www.autopejsek.cz" onclick="window.open(this.href);return false;
Uživatelský avatar
Cjuz
Příspěvky: 2472
Registrován: 17. 2. 2013, 6:27
Bydliště: Předklášteří
Kontaktovat uživatele:

14. 2. 2021, 2:03

testone píše: 14. 2. 2021, 8:55
Modros píše: 13. 2. 2021, 10:42 Projdi si část fora a zjistíš že na profilu I stavět stroj je tu už považováno za sprosté slovo. :D hodně štěstí v diskuzi
...... protože se tu furt dokola a dokola opakují ty samé chyby
I profil je dostatečně tuhý a pevný (protože ho rukou neohnu a praštit se o něj bolí)
je rovný, protože když leží na podlaze tak se nehoupe
je to dostatečný materiál, protože ho všude mají a dá se najít ve zbytkách a nic jiného neznám
nemám moc peněz, takže musím od počátku začít z těch nějlevnějších věcí co najdu vedle ve šrotě
a na začátku stavby si dovedu představit jen to, že 1m I100 je o 50,- než ...., to že ve finále (ke kterému to na 99% nedospějě) je cena těchhle 3 íček asi tak 0,1% celku a to nemluvím o ceně práce)
je to marný, je to marný, je to marný
Nebuď na ně tak přísný, chce to prostě jen dobrý plán
https://www.youtube.com/watch?v=LAj1ipAp9qk
Na konci poznávacího procesu je omyl zcela vyvrácen a my nevíme nic. Zato to víme správně.
Uživatelský avatar
filla
Příspěvky: 3523
Registrován: 1. 12. 2013, 12:55
Bydliště: Brno
Kontaktovat uživatele:

14. 2. 2021, 3:35

testone píše: 14. 2. 2021, 8:55
Modros píše: 13. 2. 2021, 10:42 Projdi si část fora a zjistíš že na profilu I stavět stroj je tu už považováno za sprosté slovo. :D hodně štěstí v diskuzi

ukažte mi 2 projekty dotažené do konce
namatkou viewtopic.php?t=6443

viewtopic.php?t=7496

i kdyz tam to nebylo "icko" ale jine nahovno profily
"do řiti se řítíme, ani o tom nevíme.."
Hrabosh
Příspěvky: 12
Registrován: 31. 12. 2020, 9:49

15. 2. 2021, 7:49

filla píše: 14. 2. 2021, 3:35
testone píše: 14. 2. 2021, 8:55
Modros píše: 13. 2. 2021, 10:42 Projdi si část fora a zjistíš že na profilu I stavět stroj je tu už považováno za sprosté slovo. :D hodně štěstí v diskuzi

ukažte mi 2 projekty dotažené do konce
namatkou viewtopic.php?t=6443

viewtopic.php?t=7496

i kdyz tam to nebylo "icko" ale jine nahovno profily
... ty stroje jsou úžasný, přesně něco takovýho jsem měl na mysli. A to vyřezávání do dřeva, jak je v tom druhým vlákně, ... luxus.
Hrabosh
Příspěvky: 12
Registrován: 31. 12. 2020, 9:49

15. 2. 2021, 7:50

testone píše: 14. 2. 2021, 8:55
Modros píše: 13. 2. 2021, 10:42 Projdi si část fora a zjistíš že na profilu I stavět stroj je tu už považováno za sprosté slovo. :D hodně štěstí v diskuzi
...... protože se tu furt dokola a dokola opakují ty samé chyby
I profil je dostatečně tuhý a pevný (protože ho rukou neohnu a praštit se o něj bolí)
je rovný, protože když leží na podlaze tak se nehoupe
je to dostatečný materiál, protože ho všude mají a dá se najít ve zbytkách a nic jiného neznám
nemám moc peněz, takže musím od počátku začít z těch nějlevnějších věcí co najdu vedle ve šrotě
a na začátku stavby si dovedu představit jen to, že 1m I100 je o 50,- než ...., to že ve finále (ke kterému to na 99% nedospějě) je cena těchhle 3 íček asi tak 0,1% celku a to nemluvím o ceně práce)
je to marný, je to marný, je to marný
takovýhle návrh se tu objevuje pravidelně 2x do měsíce už 20 let zpátky
ukažte mi 2 projekty dotažené do konce
ztráta času se tím zabývat
.....
pro autora - než začne tahat vedle ze šrotu ty íčka, nechť vytáhne za šuplíku zalamovací nůž, Herkules, školní pravítko a kus kartonové krabice a zkusí si to postavit z kartonu
.....
sorry za zkažené iluze v krásném nedělním ránu
Žádný iluze jsi mi nezkazil. Lidi jako ty jsou na každým odborným fóru a je třeba s tím počítat. Hezký den.
Odpovědět

Zpět na „CNC frézky“