SV 18 RA

Vse o konvencnich strojich, nic o jejich prestavbe na cnc
Odpovědět
gaminn
Příspěvky: 962
Registrován: 23. 6. 2007, 8:26

30. 3. 2021, 7:45

Díky moc za schéma.

Těch spojů, které vytvářejí nějakou logiku, ve schématu není zas tak moc, takže asi jo, to PLC je blbost.
gaminn
Příspěvky: 962
Registrován: 23. 6. 2007, 8:26

30. 3. 2021, 6:01

Udělalo se nám pěkně, tak jsem se dal do lakování. Epoxidový základ, pistole z aliexpressu, o bezprašném prostředí se nedá vůbec mluvit, ale celkem to šlo a s výsledkem jsem zatím spokojený. Uvidíme až co vrchní PUR. Věci, co jsou na fotkách půjdou na šedo a kromě deklů na nich moc nezáleží, jsou to všechno věci z levé nohy soustruhu.
Přílohy
IMG_20210330_155928.jpg
IMG_20210330_155944.jpg
IMG_20210330_175221.jpg
gaminn
Příspěvky: 962
Registrován: 23. 6. 2007, 8:26

1. 4. 2021, 8:12

Tak to nejdůležitější z celého soustruhu, totiž motor chlazení, už mám zrenovovaný. Už zbývá jen ten zbytek :D
Přílohy
IMG_20210401_195213.jpg
novic
Příspěvky: 1839
Registrován: 19. 10. 2014, 10:30

2. 4. 2021, 3:34

Máš to krásne . :wink:
Cash Rules Everything Around Me
C.R.E.A.M
Petr68
Příspěvky: 881
Registrován: 3. 12. 2015, 9:38
Bydliště: Karlovy vary

2. 4. 2021, 7:12

Paráda, tak to má vypadat. Pomalu ale jistě :D
Strigon ME-250, SV18RA, Mikromat SFW200/600, L-TEC Ductling II
joke25
Příspěvky: 74
Registrován: 9. 10. 2017, 10:40
Bydliště: Skalica okolie

2. 4. 2021, 7:27

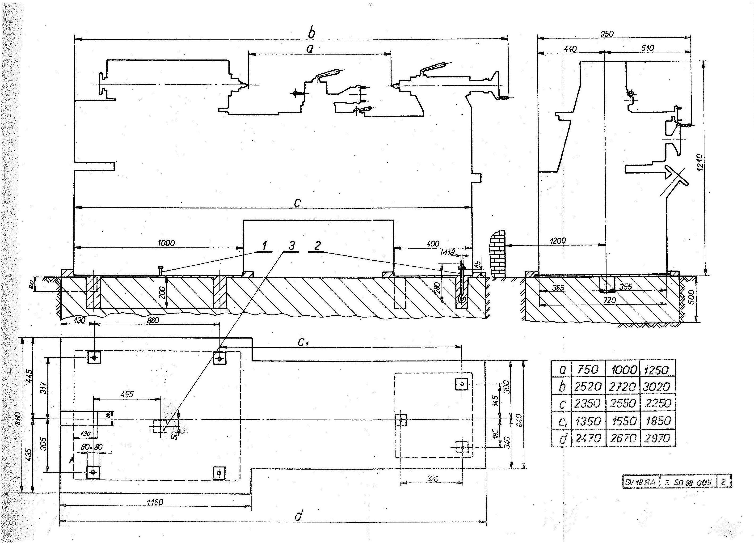
Chlapi, kto máte 18-tku RA - ako najbližšie ku stene (zadnou stranou) sa dá reálne postaviť, aby sa dalo obsluhovať všetko čo treba? Je potrebné sa vôbec zo zadu dostávať k stroju? V manuále je nakreslené 1200mm os vretena od zadnej steny miestnosti. Je to tak nutné? Plánujem miesto, tak aby som vedel koľko mi ho zaberie. Ďakujem.
Petr68
Příspěvky: 881
Registrován: 3. 12. 2015, 9:38
Bydliště: Karlovy vary

2. 4. 2021, 8:12

joke25 píše: 2. 4. 2021, 7:27 Chlapi, kto máte 18-tku RA - ako najbližšie ku stene (zadnou stranou) sa dá reálne postaviť, aby sa dalo obsluhovať všetko čo treba? Je potrebné sa vôbec zo zadu dostávať k stroju? V manuále je nakreslené 1200mm os vretena od zadnej steny miestnosti. Je to tak nutné? Plánujem miesto, tak aby som vedel koľko mi ho zaberie. Ďakujem.
Tak napřed je potřeba si nelhat a poctivě se zvážit na osobní váze.
Dále se vynásobí 1kg x 0.5cm a z toho vychází vzdálenost zadní strany levé nohy od zdi. :lol:
Ale vážně, já mám tuto vzdálenost 45cm. Takto postavený jsem ho celý složil a tak předpokládám že půjde i znovu rozebrat.
Strigon ME-250, SV18RA, Mikromat SFW200/600, L-TEC Ductling II
joke25
Příspěvky: 74
Registrován: 9. 10. 2017, 10:40
Bydliště: Skalica okolie

2. 4. 2021, 9:34

Petr68 píše: 2. 4. 2021, 8:12
joke25 píše: 2. 4. 2021, 7:27 Chlapi, kto máte 18-tku RA - ako najbližšie ku stene (zadnou stranou) sa dá reálne postaviť, aby sa dalo obsluhovať všetko čo treba? Je potrebné sa vôbec zo zadu dostávať k stroju? V manuále je nakreslené 1200mm os vretena od zadnej steny miestnosti. Je to tak nutné? Plánujem miesto, tak aby som vedel koľko mi ho zaberie. Ďakujem.
Tak napřed je potřeba si nelhat a poctivě se zvážit na osobní váze.
Dále se vynásobí 1kg x 0.5cm a z toho vychází vzdálenost zadní strany levé nohy od zdi. :lol:
Ale vážně, já mám tuto vzdálenost 45cm. Takto postavený jsem ho celý složil a tak předpokládám že půjde i znovu rozebrat.
:) Ďakujem za info - to máme 450mm od zadnej nohy po stenu, resp, 890mm od osi vretena po stenu - má niekto menej? :)
Nemám sústruh fyzicky možnosť zmerať - ešte len preň stavám dielňu - tak preto sa pýtam možno na takú jednoduchú vec...
Vychádzal som zatial z tohto obrázku:
Přílohy
man_sv18RA_GR_2.jpg
majo477
Příspěvky: 873
Registrován: 28. 5. 2014, 8:39

2. 4. 2021, 10:16

15cm 😁
20210402_111454.jpg
pilatdenis7
Příspěvky: 285
Registrován: 15. 7. 2020, 7:34

2. 4. 2021, 11:42

joke25 píše: 2. 4. 2021, 7:27 Chlapi, kto máte 18-tku RA - ako najbližšie ku stene (zadnou stranou) sa dá reálne postaviť, aby sa dalo obsluhovať všetko čo treba? Je potrebné sa vôbec zo zadu dostávať k stroju? V manuále je nakreslené 1200mm os vretena od zadnej steny miestnosti. Je to tak nutné? Plánujem miesto, tak aby som vedel koľko mi ho zaberie. Ďakujem.
Ahoj je lepšie mať čim viac lebo keby trebalo niečo opravovať očistit sustruh alebo keď je lepšie pomerať obrobok s druhej strany alebo niečo
Ja mam asi 800 keď máš miesta tak nesanuj
joke25
Příspěvky: 74
Registrován: 9. 10. 2017, 10:40
Bydliště: Skalica okolie

2. 4. 2021, 12:35

majo477 píše: 2. 4. 2021, 10:16 15cm 😁20210402_111454.jpg
Tak myslím že teba už netromfne nikto- 15cm :D
Každopádne ďakujem za reakcie aj za reálne foto - asi budem počítať radšej okolo 400mm od nohy po stenu. Ešte si asi nejaký ten rok počkám, než ho budem reálne umiestňovať. Ale treba plánovať popredu - aby potom človek nebol prekvapený :)
servis4sp
Příspěvky: 708
Registrován: 26. 11. 2018, 1:07
Kontaktovat uživatele:

2. 4. 2021, 8:47

joke25 píše: 2. 4. 2021, 12:35
majo477 píše: 2. 4. 2021, 10:16 15cm 😁20210402_111454.jpg
Tak myslím že teba už netromfne nikto- 15cm :D
Každopádne ďakujem za reakcie aj za reálne foto - asi budem počítať radšej okolo 400mm od nohy po stenu. Ešte si asi nejaký ten rok počkám, než ho budem reálne umiestňovať. Ale treba plánovať popredu - aby potom človek nebol prekvapený :)
Ahoj, jde hlavně o to ,že vana na špony se vytahuje dozadu. Zepředu se to čistí na prd😉
sv18ra, KSU250, 2N118, SH-700A, FA3AU, tos 1U, gh450, R5, FN40, HJ8, WKV63
joke25
Příspěvky: 74
Registrován: 9. 10. 2017, 10:40
Bydliště: Skalica okolie

2. 4. 2021, 8:55

servis4sp píše: 2. 4. 2021, 8:47
joke25 píše: 2. 4. 2021, 12:35
majo477 píše: 2. 4. 2021, 10:16 15cm 😁20210402_111454.jpg
Tak myslím že teba už netromfne nikto- 15cm :D
Každopádne ďakujem za reakcie aj za reálne foto - asi budem počítať radšej okolo 400mm od nohy po stenu. Ešte si asi nejaký ten rok počkám, než ho budem reálne umiestňovať. Ale treba plánovať popredu - aby potom človek nebol prekvapený :)
Ahoj, jde hlavně o to ,že vana na špony se vytahuje dozadu. Zepředu se to čistí na prd😉
To sa vážne vyťahuje dozadu? Síce som sa na tých strojoch vyučil, ale už je to pár rokov a nepamätám si to čistenie. V dielni na škole sme mali sústruhy postavené v priestore - tak nebol problém aj zo zadu čistiť, možno som si to vtedy neuvedomil. Bolo by to problém prerobiť na vyťahovanie dopredu?
majo477
Příspěvky: 873
Registrován: 28. 5. 2014, 8:39

2. 4. 2021, 9:36

joke25 píše: 2. 4. 2021, 8:55
servis4sp píše: 2. 4. 2021, 8:47
joke25 píše: 2. 4. 2021, 12:35

Tak myslím že teba už netromfne nikto- 15cm :D
Každopádne ďakujem za reakcie aj za reálne foto - asi budem počítať radšej okolo 400mm od nohy po stenu. Ešte si asi nejaký ten rok počkám, než ho budem reálne umiestňovať. Ale treba plánovať popredu - aby potom človek nebol prekvapený :)
Ahoj, jde hlavně o to ,že vana na špony se vytahuje dozadu. Zepředu se to čistí na prd😉
To sa vážne vyťahuje dozadu? Síce som sa na tých strojoch vyučil, ale už je to pár rokov a nepamätám si to čistenie. V dielni na škole sme mali sústruhy postavené v priestore - tak nebol problém aj zo zadu čistiť, možno som si to vtedy neuvedomil. Bolo by to problém prerobiť na vyťahovanie dopredu?
Nieje to žiadny problém,,
joke25
Příspěvky: 74
Registrován: 9. 10. 2017, 10:40
Bydliště: Skalica okolie

3. 4. 2021, 10:28

Tak to je dobrá správa - že sa dá spraviť vyťahovanie vane na špóny z prednej strany - máte to tak ešte niekto spravené?
Napr na SUI by to nešlo spraviť kvôli prívodu kabeláže do suportu , ale tu asi nič nezavadzia, len možno nejaké dorazy zo zadnej strany vane - ale to som naživo nepozeral- lebo nemám možnosť.
Odpovědět

Zpět na „konvenční soustruhy“