Ahoj,
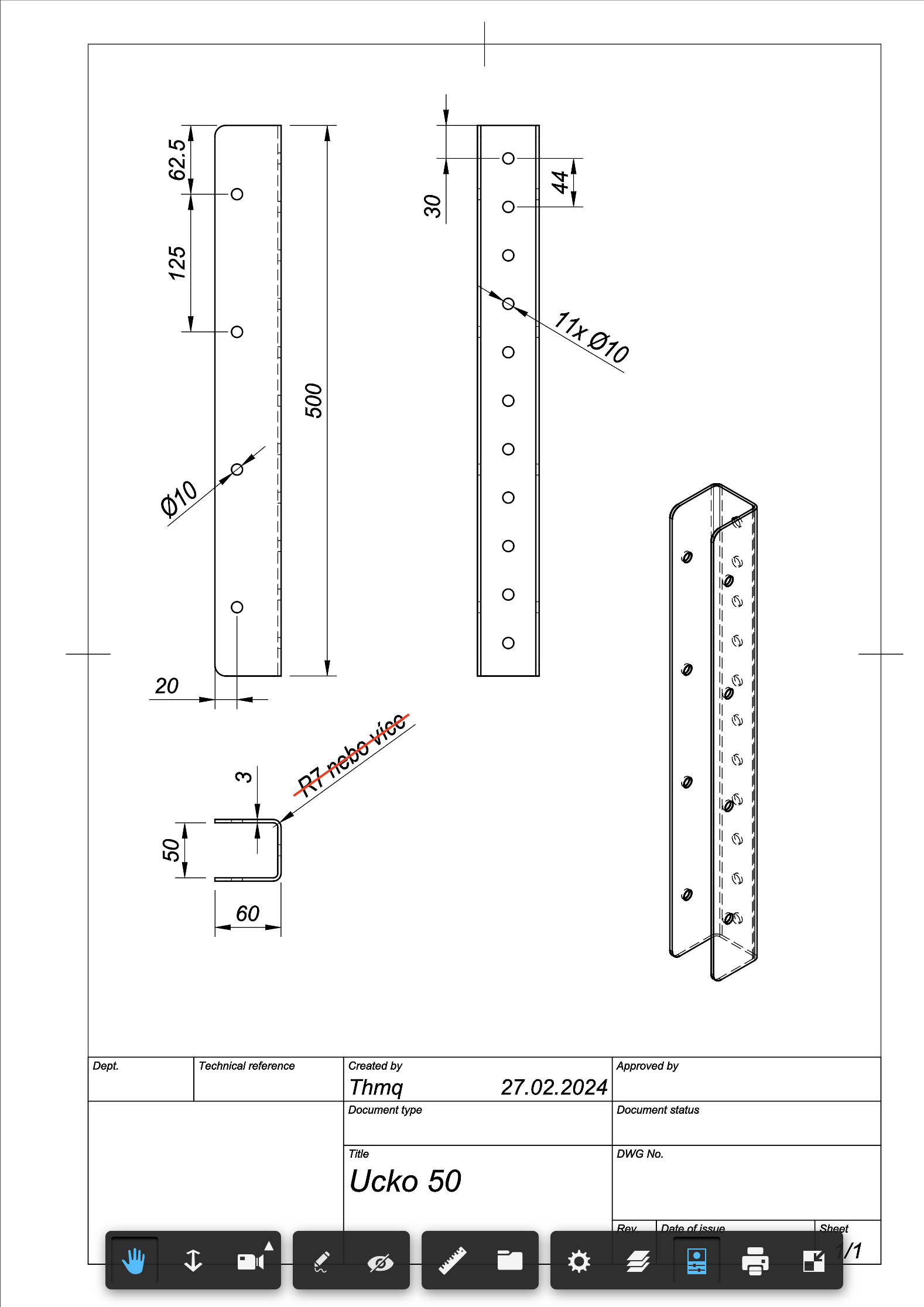
prosil bych nacenit 8 kusů, výkres zde (mohu dodat rozložený tvar).
Materiál snadno svařitelná ocel ("bláto"). Tolerance zemědělské, většina rozměrů přizpůsobitelná (kótu "R7 nebo více" jsem přehodnotil, není nutné dodržet, jen mi prosím napište, kolik to cca bude). Profil by přišel přes zadní otvory přivařit na sloupek a svíral by dvě 250x50 fošny nad sebou. Zaoblení rohů lze vypustit, pokud by to byla komplikace.
Potřeboval bych to ideálně do příští středy, Praha a okolí (příp. poslat). Zatím stačí hrubý nástřel a info, jestli by se to řezalo na laseru, pro ten bych to případně asi ještě mírně poladil (tvary některých děr). Jestli chcete model, můžu dodat STP.
Dík, T.
Profil "Účko 50" (zrušeno)
Pravidla fóra
Toto forum vyzaduje schvaleni prispevku moderatorem.
Toto forum vyzaduje schvaleni prispevku moderatorem.
SM16A, FN20, 3E710B, CDC7-2, HO02, CO2laser, Fiber.. propagator www.atreon.cz
1. do toho těžko narvu 50mm fošnu, 2. bych celkem ocenil všechny další úpravy, protože na to nebudu mít moc času. Potenciální plán B, pokud se s nikým nedohodnu, je https://www.kondor.cz/jekl-u-60x60x60x3/d-78899/, ale to bych si ještě rozmyslel.Charon píše: ↑27. 2. 2024, 5:18 Proc to chces vyrabet, kdyz to jde koupit hotove![]()
https://www.kondor.cz/jekl-u-50x50x50x3/d-78801/
mimooborová naplavenina • kolowratský zázrak™ • NPS • GCU • HirthCalc • ncDP.ino
Máš to hezké, díky za inspiraci. Cetris je asi dobrý matroš, fošny by takto smontované myslím dlouho nedržely.
Sloupky tam chceme. Napadají mě i jiná řešení, ale toto se mi momentálně líbí nejvíc. Ještě tomu chvíli dám..
Naposledy upravil(a) Thomeeque dne 28. 2. 2024, 8:27, celkem upraveno 1 x.
mimooborová naplavenina • kolowratský zázrak™ • NPS • GCU • HirthCalc • ncDP.ino
Příště bych udělal jednu stranu vyndavací bez použití nástrojů, aby byl snadnější přístup při obnově spodních vrstev (za dva roky zmizí)
Desky cetris hobby (300mm šíře) se daly před pár roky koupit u výrobce za 10Kč kus. Při koupi celého kamionu byly za 1Kč
Kdo má možnost dopravy z Hranic, tak tam pořád nakoupí mnohem levněji než ve stavebninách.
Desky cetris hobby (300mm šíře) se daly před pár roky koupit u výrobce za 10Kč kus. Při koupi celého kamionu byly za 1Kč
Kdo má možnost dopravy z Hranic, tak tam pořád nakoupí mnohem levněji než ve stavebninách.
U nás budou za dva roky nejspíš potřeba opět vyměnit desky
Dík za tip! Třeba využijeme příště
T.
mimooborová naplavenina • kolowratský zázrak™ • NPS • GCU • HirthCalc • ncDP.ino